Huurwoning Kerkrade

Spiesstraat 38, Kerkrade

Korte samenvatting

Locatie
Kerkrade
Huurprijs
€ 782,11
Type woning
Hoekwoning
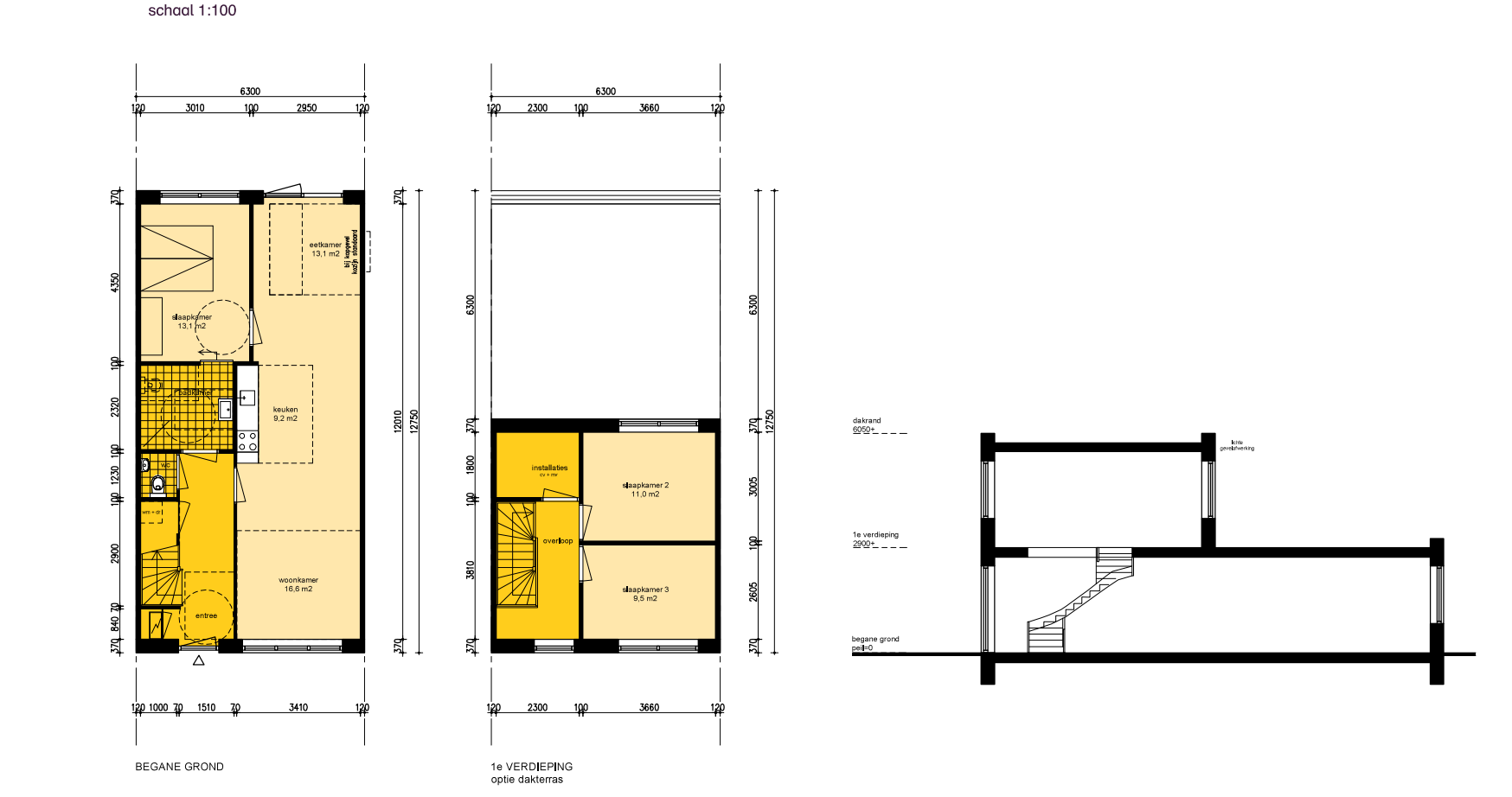
Oppervlakte:
113 m2
Kamers:
4
Slaapkamers:
3
Wachttijd:
(niet ingesteld)
Datum beschikbaar:
27 apr 2026
Maximaal inkomen:
(niet ingesteld)
Status:
Gepubliceerd
Reageren

Omschrijving woning

Ben je op zoek naar een mooie gezinswoning? Reageer dan nu! Deze woning ligt in de wijk Erenstein, een rustige en groene wijk. Je woont er dicht bij natuur en wandelroutes, maar toch met alle voorzieningen binnen handbereik. Deze volledig elektrische woning met zonnepanelen, heeft 3 slaapkamers waarvan 1 slaapkamer (en badkamer) op de begane grond. Hierdoor is de woning ideaal voor mensen die opzoek zijn naar gezinswoningen waarbij alle faciliteiten op de begane grond te vinden zijn. VOOR WIE IS DE WONING BESTEMD: **Huishoudgrootte** : Max 4 personen **Leeftijd** : Vanaf 21 jaar ** _Let op! WMO kandidaten krijgen voorrang bij een toewijzing!_** \- 3 of 4 persoons huishouden met een belastbaar inkomen van **MINIMAAL** 39925 **MAXIMAAL** 56910 per jaar. \- 3 of 4 persoons huishouden met AOW en een belastbaar inkomen van **MINIMAAL** 38650 en **MAXIMAAL** 56910 per jaar. **Let op! Zeer veel overnames in de woning aanwezig. Vandaar dat bezichtiging in bewoonde staat zal plaatsvinden.** Heeft u serieuze interesse? Zorg dan dat u alle nodige documenten compleet heeft, indien uw documenten niet compleet zijn wordt u overgeslagen en gaan wij verder met de volgende kandidaat. Voor meer informatie kijk op de pagina: [Inkomen en documenten](https://www.thuisinlimburg.nl/informatie-en-contact/inkomen-en- documenten#/) Aan deze advertentie kunnen geen rechten worden ontleend.

Kaart