Rental property Almere

Java Legioenstraat 5, Almere

Quick summary

Location
Almere
Rental price
€941.20
Property type
Tussenwoning
Area:
68 m2
Rooms:
4
Beds:
3
Waiting time:
(not set)
Date available:
(not set)
Maximum income:
(not set)
Status:
Published
Respond

Property description

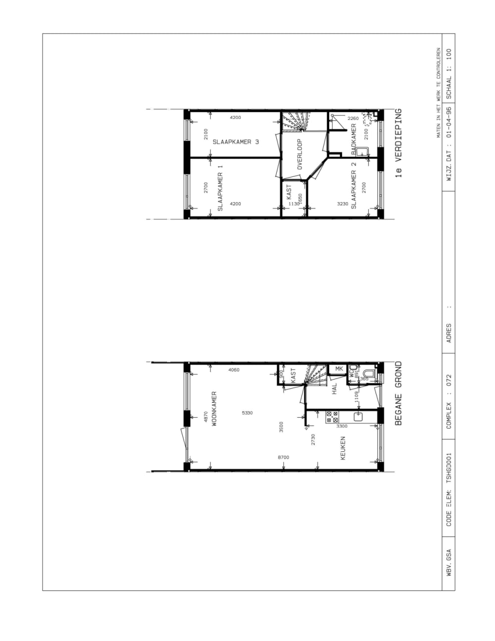
*Er kunnen geen rechten worden ontleend aan de advertentie, foto's en plattegrond.De woningU komt de woning binnen in de hal. Vanuit de hal heeft u toegang tot het toilet en de woonkamer. Aan de woonkamer is de keuken gelegen. Vanuit de woonkamer heeft u toegang tot de tuin. Op de 1everdieping zijn 3 slaapkamers aanwezig en de badkamer met douchehoek en wastafel.ToewijzingBij het toewijzen van de woning kijken wij of de woning passend is bij de kandidaat.Indien wij vinden dat de woning niet passend is, wordt de woning aan de volgende belangstellende in de rij aangeboden.Wij kijken hier onder andere naar de gezinssamenstelling, leeftijd, de woning, inkomen etc. Zorg dat uw gegevens in Woningnet kloppen.BindingKandidaten met een maatschappelijke binding met Almere krijgen voorrang op deze woning. Wij controleren hier streng op.U heeft een maatschappelijke binding als u:- Minimaal 6 jaar achter elkaar in de gemeente Almere woont, of- In de afgelopen 10 jaar minimaal 6 jaar achter elkaar in de gemeente Almere heeft gewoond.

Map