Rental property Almere

Mozartplantsoen 40, Almere

Quick summary

Location
Almere
Rental price
€725.79
Property type
Appartement
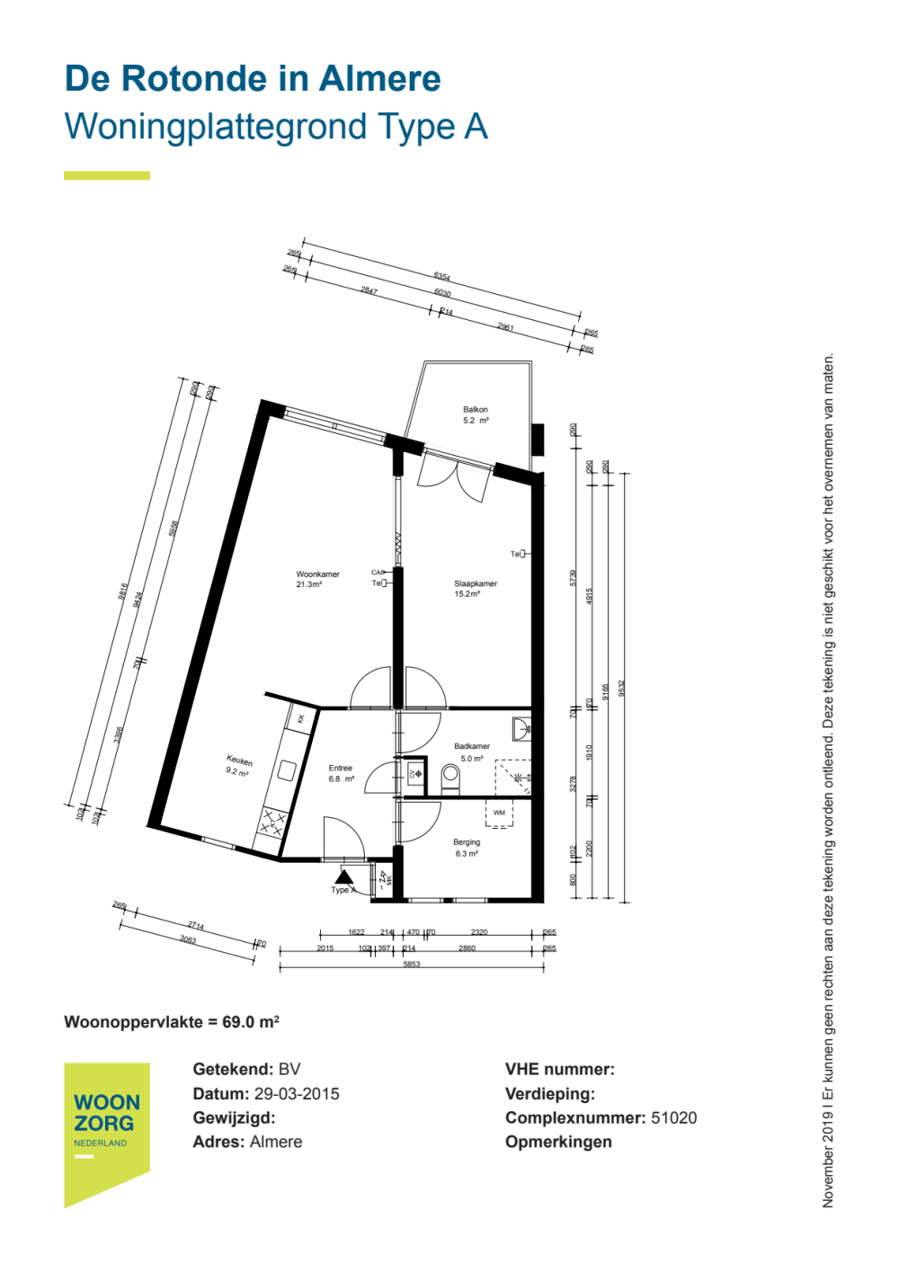
Area:
76 m2
Rooms:
2
Beds:
1
Waiting time:
(not set)
Date available:
Nov 3, 2025
Maximum income:
€39.055.00
Status:
Expired

Property description

De Rotonde ligt in de Muziekwijk in Almere-Stad en is gebouwd in 1991. Het wooncentrum bestaat uit 97 woningen verdeeld over de begane grond en drie verdiepingen. De verdiepingen zijn met een lift bereikbaar. Bewoners kunnen gebruik maken van een ontmoetingsruimte, een wasserette, een afsluitbare fietsenstalling, een wintertuin, een scoot mobiel stalling, een biljartruimte en twee logeerkamers voor gasten. Het gebouw rolstoeltoegankelijk. Het wooncentrum ligt op loopafstand van diverse voorzieningen zoals het winkelcentrum, het gezondheidscentrum en het openbaar vervoer.De woningenEr zijn vijf typen woningen. De gemiddelde oppervlakte van de woningen bedraagt 68 m2. De woningen hebben geen drempels. Verder zijn ze voorzien van een ruime sanitaire ruimte en een open keuken. In De Rotonde is een bewonersconsulent werkzaam.ToewijzingDe woningen worden toegewezen op basis van een wachtlijst en zijn bestemd voor personen vanaf 55 jaar.Bewoning met kinderen is niet toegestaan.

Map