Rental property Ede

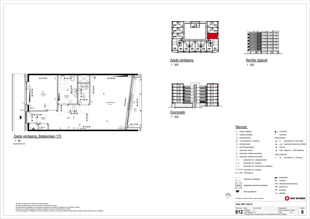
Bataljonlaan 173, Ede

Quick summary

Location
Ede
Rental price
€923.69
Property type
Appartement
Area:
49 m2
Rooms:
2
Beds:
1
Waiting time:
(not set)
Date available:
Oct 1, 2025
Maximum income:
(not set)
Status:
Expired

Property description

World Food CenterOp het World Food Center terrein in Ede neemt Woonstede 88 sociale huurwoningen af van WFCD (van Wijnen, BPD en Green). Het appartementengebouw ligt in een groene omgeving, vlak bij het nieuwe station Ede-Wageningen.Het gebouwDe 88 woningen bestaan uit een-, twee- en driekamerappartementen. Alle appartementen krijgen een eigen buitenruimte. Op de begane grond van het gebouw komt ruimte voor ontmoeting. Het gebouw heeft 7 verdiepingen en een lift. Zorg-opMaat opent op de begane grond Grand Café bij Maaten.Zorg-opMaat24 appartementen worden aangeboden aan Zorg-opMaat. Voor meer informatie over Zorg-opMaat, klikhier.OnderhoudsabonnementU betaalt € 7,26 per maand voor een onderhoudsabonnement.Voor meer informatie over deze woning, klikhier.

Map