Rental property Ede

Dalerveen 34, Ede

Quick summary

Location
Ede
Rental price
€830.77
Property type
Tussenwoning
Area:
114 m2
Rooms:
4
Beds:
3
Waiting time:
(not set)
Date available:
Apr 18, 2025
Maximum income:
(not set)
Status:
Expired

Property description

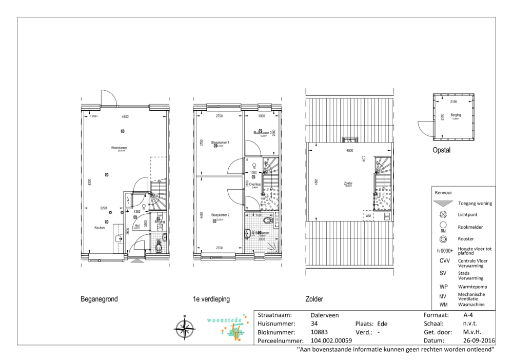
De woningGezinswoning voor minimaal 5 personen in de wijk Kernhem.Datum sleutelsWij weten nog niet per wanneer de woning beschikbaar is. Dit is afhankelijk van de werkzaamheden die wij nog in de woning moeten doen. Wordt u de nieuwe huurder? Dan laten we zo snel mogelijk weten wanneer u de sleutels krijgt.PlattegrondGa altijd de woning bekijken voordat u deze gaat huren. Hoe de woning er nu uitziet kan anders zijn dan op de plattegrond.OnderhoudsabonnementU betaalt € 6,05 per maand voor eenonderhoudsabonnement.Elektrisch kokenIn deze woning komt/zit een aansluiting om elektrisch te koken. Dit is standaard een tweefasenaansluiting (Perilex). Het kopen en plaatsen van de kookplaat doet u zelf.Uw nieuwe woningKlikhierom te zien wat u van de woning kunt verwachten als u de nieuwe huurder wordt.Het energielabelVoor nieuwe huurders is het belangrijk om te weten hoe energiezuinig een woning is. Dit kunt u zien op het energielabel. Dit label is tien jaar geldig en wordt vastgesteld door een speciaal bedrijf. Op het energielabel staat een letter of een indexcijfer. De letter A is het meest energiezuinig en de letter G het minst. Voor het indexcijfer geldt; hoe dichter bij de 0, hoe energiezuiniger de woning.Sinds 2021 is de manier hoe het energielabel bepaald wordt, veranderd. Veel energielabels zijn gemaakt voor 2021. Wilt u weten wanneer het energielabel van deze woning gemaakt is? Kijk dan bij de bijlagen in deze advertentie. Daar kunt u het energielabel vinden.

Map