Rental property Lunteren

Hulakker 66, Lunteren

Quick summary

Location
Lunteren
Rental price
€926.47
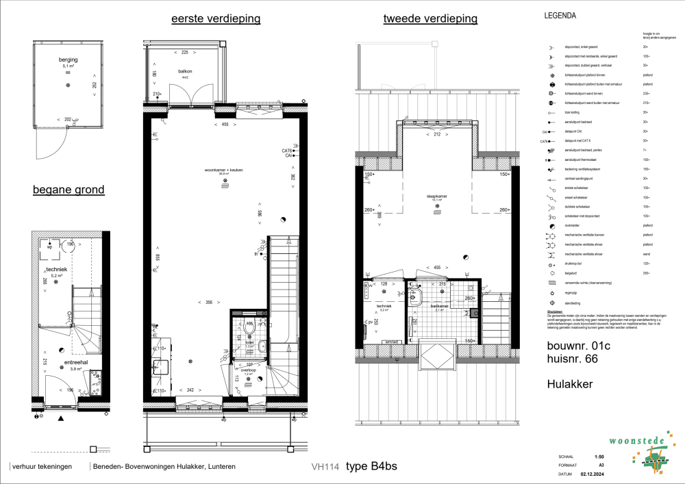
Property type
Benedenwoning
Area:
75 m2
Rooms:
2
Beds:
1
Waiting time:
(not set)
Date available:
Feb 5, 2025
Maximum income:
(not set)
Status:
Expired

Property description

HulakkerIn de nieuwe wijk Hulakker in Lunteren komen 18 sociale huurwoningen. In opdracht van Woonstede bouwt bouwbedrijf NAP hier 6 beneden- en 12 bovenwoningen. Voor meer informatie over het project, klikhier.OpleveringDe woningen worden waarschijnlijk in mei 2025 opgeleverd.OnderhoudsabonnementU betaalt € 6,05 per maand voor eenonderhoudsabonnement.

Map