Rental property Tiel

Godfried Bomansstraat 14, Tiel

Quick summary

Location
Tiel
Rental price
€529.14
Property type
Appartement
Area:
63 m2
Rooms:
2
Beds:
1
Waiting time:
(not set)
Date available:
Feb 20, 2026
Maximum income:
€39.055.00
Status:
Published
Respond

Property description

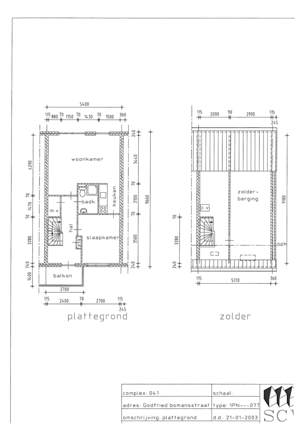
Bent u op zoek naar een ideale woning in Tiel?Deze woning aan deGodfried Bomansstraat 14biedt u een comfortabele en zorgeloze leefomgeving, perfect afgestemd op uw wensen.Indeling van de woningWoonkamer: knusse woonkamer met uitzicht op een watertje.Keuken: de keuken wordt gerenoveerd en wordt iets uitgebreid. De keuken is geschikt voor koken op elektrisch. Er is nog een kleurkeuze mogelijk.Slaapkamer: er is een kleine slaapkamer aanwezig (ook als eetkamer te gebruiken), maar daarnaast bevindt zich op de tweede verdieping een ruime zolder.Badkamer: kleine badkamer met douche en toilet.Balkon aanwezig en een losse berging.Voorzieningen in de buurtTiel-Noordis een diverse wijk. Er wonen jonge gezinnen met kinderen en ouderen die er al langere tijd wonen. Voor de dagelijkse boodschappen is er winkelcentrum Rauwenhof en er zijn drie basisscholen en het ROC Rivor gevestigd. Tiel is een middelgrote stad met ruim 40.000 inwoners, centraal gelegen in Nederland.  Tiel-Noord is een rustige wijk en heeft een groene omgeving, met parken en bomen die zorgen voor een aangename leefomgeving. Met de Waal en uiterwaarden nabij is het een mooie mix van een stedelijke omgeving en natuur. Voor uitgebreide informatie over de buurt kunt u terecht opwww.postcodebijadres.nl.Overname van spullenEr is geen overname aanwezig.EnergievoorzieningenDe woning beschikt over een Perilex-aansluiting. Hierdoor kunt u profiteren van lagere energiekosten en een duurzame woning.Voor wie is deze woning geschikt?Deze woning is speciaal bedoeld voor starters of 1-2 persoonshuishoudens. Controleer of deze woning geschikt is voor uw situatie door in te loggen en uw inkomensgegevens in te vullen.Wilt u weten of u in aanmerking komt voor huurtoeslag? Maak een proefberekening viawww.toeslagen.nlom verrassingen te voorkomen.Hoe verloopt het proces?Na sluiting van de reactietermijn ontvangen de eerste 3 kandidaten een uitnodiging voor de bezichtiging. Indien zij geen belangstelling hebben of niet voldoen aan de voorwaarden, worden de volgende 3 kandidaten benaderd.VoorwaardenBij acceptatie van de woning moet u uw inkomen aantonen met een inkomensverklaring over 2024 of 2025. Dit geldt ook voor een eventuele mede-inschrijver en andere volwassenen die meeverhuizen.Vraag uw inkomensverklaring eenvoudig aan viawww.mijnbelastingdienst.nlmet uw DigiD.Heeft u geen DigiD? Bel dan de Belastingdienst via 0800-0543 met uw burgerservicenummer bij de hand. U ontvangt de verklaring binnen vijf werkdagen.Houd er rekening mee dat u bij het reageren op de woning al over de inkomensverklaring beschikt en het bedrag uit de verklaring in uw profiel heeft ingevuld.De advertentie is gewijzigd op 23-01-2026 14:07:50.

Map