Rental property Wageningen

Crocusstraat 58, Wageningen

Quick summary

Location
Wageningen
Rental price
€736.51
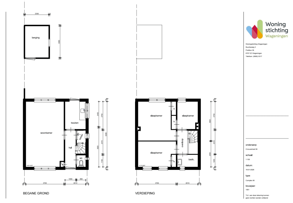
Property type
Hoekwoning
Area:
58 m2
Rooms:
4
Beds:
3
Waiting time:
(not set)
Date available:
Apr 2, 2026
Maximum income:
€39.055.00
Status:
Published
Respond

Property description

Deze leuke hoekwoning ligt aan de Crocusstraat. De woningen zijn ouder en daardoor gehoriger. Het centrum van Wageningen bereikt u in een paar minuten fietsen.

Map