Rental property Wageningen

Olympiaplein 76, Wageningen

Quick summary

Location
Wageningen
Rental price
€713.02
Property type
Appartement
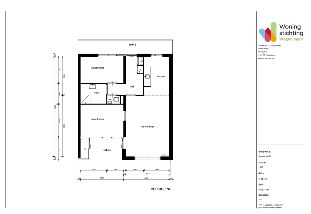
Area:
58 m2
Rooms:
3
Beds:
2
Waiting time:
(not set)
Date available:
Feb 11, 2026
Maximum income:
€39.055.00
Status:
Published
Respond

Property description

Mooi appartement op de vierde etage. De entree van dit complex is afgesloten. De woning is voorzien van twee slaapkamers, waarvan de kleinste ook als hobbykamer gebruikt kan worden. Er is een gezamenlijke binnentuin, waar regelmatig activiteiten worden georganiseerd. Het centrum van Wageningen is op loopafstand.

Map