Toggle navigation
Provinces
Noord-Brabant
Zuid-Holland
Noord-Holland
Gelderland
Limburg
Overijssel
Utrecht
Groningen
Friesland
Drenthe
Zeeland
Flevoland
Vlaams Gewest
Cities
Groningen
Den Haag
Amsterdam
Leeuwarden
Breda
Hoogezand
Bergen op Zoom
Oosterhout
Utrecht
Haarlem
Arnhem
Tilburg
Leiden
Maastricht
Enschede
Home
Home
Social housing listing
Groningen
Haren
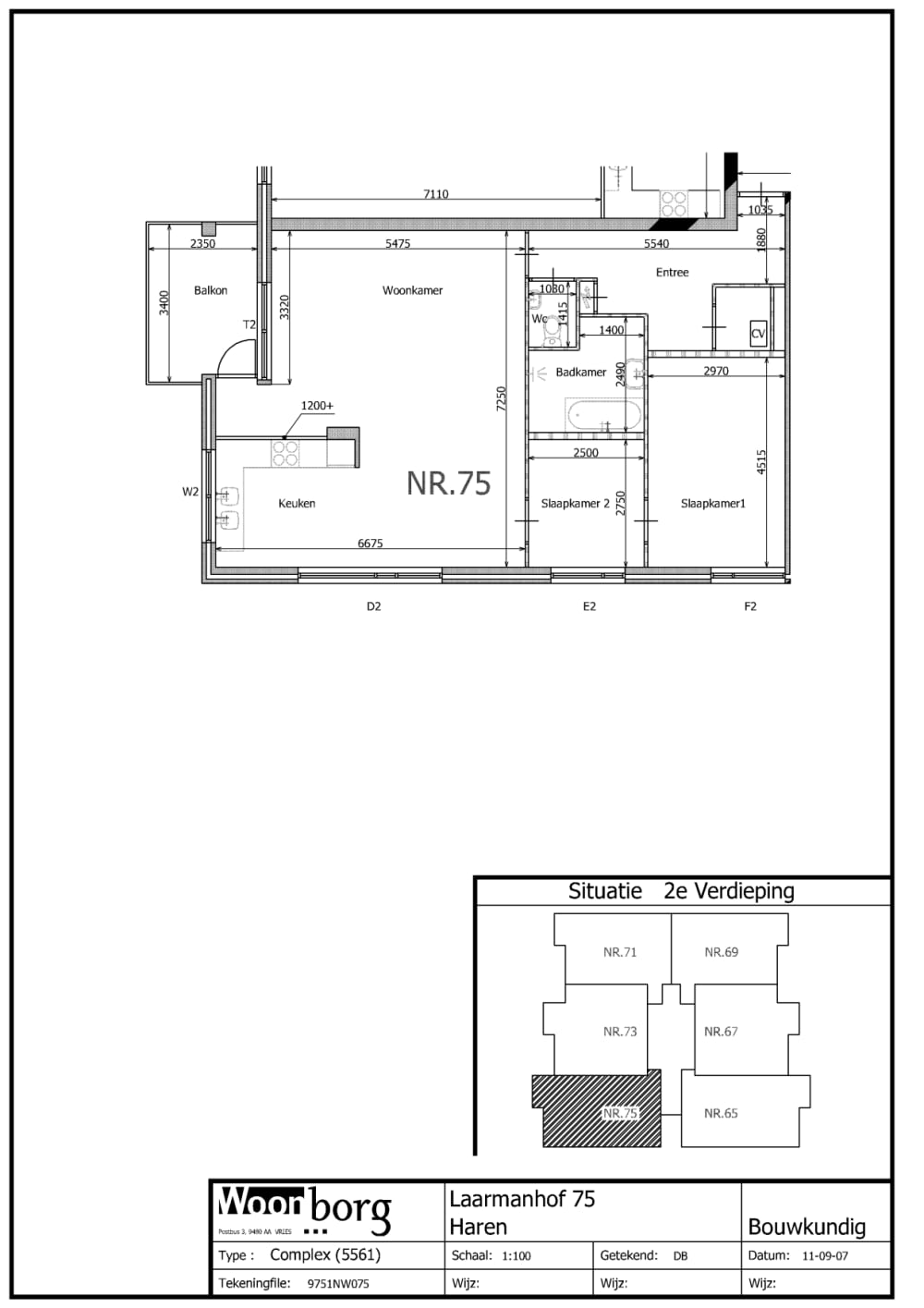
Laarmanhof 75
Rental property Haren
Laarmanhof 75,
Haren
Previous
Next
Quick summary
Location
Haren
Rental price
€809.57
Property type
Benedenwoning
Area:
68 m
2
Rooms:
3
Beds:
2
Waiting time:
(not set)
Date available:
Feb 2, 2026
Maximum income:
(not set)
Status:
Expired
Property description
Mooie woning met uitzicht over de sportvelden.
Map