Rental property Mensingeweer

Weerhorn 2, Mensingeweer

Quick summary

Location
Mensingeweer
Rental price
€590.03
Property type
Tussenwoning
Area:
51 m2
Rooms:
3
Beds:
2
Waiting time:
(not set)
Date available:
Feb 16, 2026
Maximum income:
€39.055.00
Status:
Expired

Property description

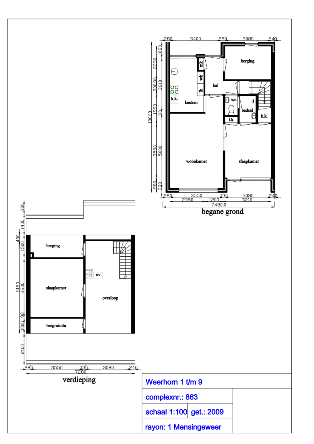
Betreft: Een seniorenwoning gelegen aan de Weerhorn 2 te Mensingeweer. Deze tussenwoning beschikt over alle voorzieningen op de begane grond. Op de verdieping is nog een tweede slaapkamer en bergruimte aanwezig.In deze woning is aardbevingsschade geconstateerd. Dit proberen wij te herstellen voor de woning opnieuw wordt verhuurd. In de vertrekken waar schade is geconstateerd wordt het behang verwijderd. Deze vertrekken worden, na het herstellen van de aardbevingsschade, behangklaar aan de nieuwe huurder opgeleverd. Let op: De genoemde verhuurdatum is voorlopig en kan wijzigen.Minimaal inkomen voor deze woning:• geen eisenMaximaal inkomen voor deze woning (dit geldt niet voor wijkvernieuwingsurgenties en rolstoelindicaties):• Voor 1 persoon € 51.537,-• Voor 2 of meer personen € 56.910,-Meer algemene informatie over inkomensregels vindt uhier.

Map