Rental property Midwolda

Doctor Oortwijn Botjeslaan 127, Midwolda

Quick summary

Location
Midwolda
Rental price
€748.50
Property type
Appartement
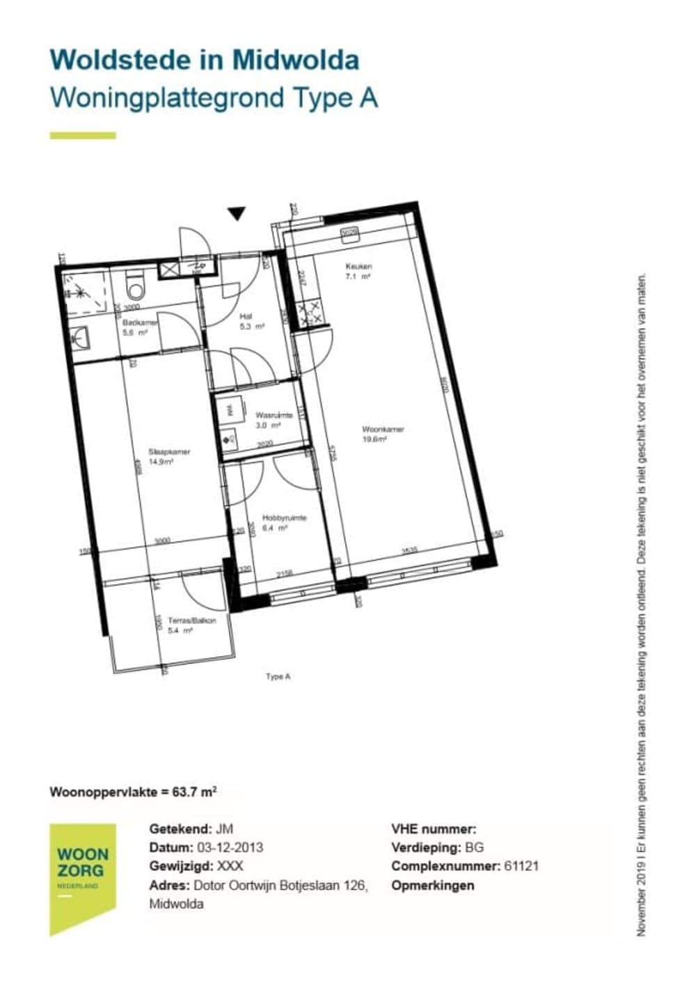
Area:
74 m2
Rooms:
3
Beds:
2
Waiting time:
(not set)
Date available:
Dec 29, 2025
Maximum income:
(not set)
Status:
Published
Respond

Property description

De Woldstede ligt in het centrum van Midwolda, op de plek van de voormalige basisschool. Direct naast het complex ligt een klein park, waar u fijn kunt wandelen. In de buurt vindt u een supermarkt, een bakker en meerdere restaurants.Het wooncomplex bestaat uit 19 driekamerwoningen verdeeld over twee woonlagen. Bewoners kunnen gebruikmaken van de recreatieruimte en de gezamenlijke fietsenberging. De Steunstee organiseert activiteiten in het complex. Ook komt de apotheker uit Scheemda dagelijks langs om medicijnen op te halen en te bezorgen. Op vrijdagmiddag is Certe aanwezig voor bloedprikken.De bewonersconsulent is het aanspreekpunt voor alle huurders. Deze persoon maakt u wegwijs in uw nieuwe woonomgeving, ziet erop toe dat u prettig en rustig woont en zorgt ervoor dat u precies de service krijgt die u wenst.Duurzaam WonenWoonzorg Nederland wil milieubewust en duurzaam zijn. We streven ernaar dat onze woningen in 2030 gemiddeld energielabel B hebben. En in 2050 energieneutraal zijn. Lees meer overDuurzaam Wonen in Woldstede.Over de woningenDe woningen hebben een oppervlakte van circa 65 m². De woningen zijn aangepast aan de wensen en behoeften van senioren en voldoen aan het zogenaamde ‘seniorenlabel’. Dit betekent dat de woningen gelijkvloers zijn en rolstoeltoegankelijk.

Map