Rental property Zuidbroek

P.C. Hooftstraat 13, Zuidbroek

Quick summary

Location
Zuidbroek
Rental price
€633.51
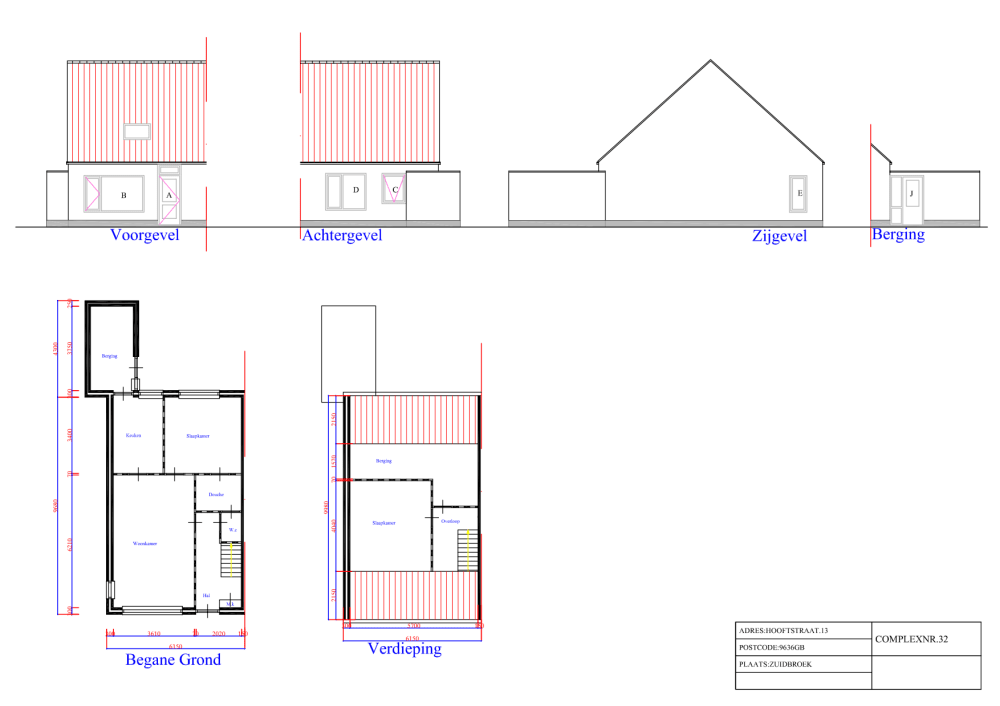
Property type
Tussenwoning
Area:
110 m2
Rooms:
5
Beds:
4
Waiting time:
(not set)
Date available:
Apr 2, 2026
Maximum income:
€39.055.00
Status:
Published
Respond

Property description

Seniorenwoning aan de rand van Zuidbroek met grote tuinWoning- Slaapkamer en badkamer op de begane grond- Veel ruimte rondom, grote tuin- Aan de rand van het dorpStaat van de woningDe woning wordt in principe leeg aan u opgeleverd. Dat houdt in dat u mogelijk moet schilderen, behang vernieuwen en vloeren plaatsen. Mogelijk dat de oude huurder deze zaken aan u kan overdragen.In de buurt- Goed bereikbaar met openbaar vervoer- Supermarkt- Winkelcentrum- Diverse horeca gelegenheden- Uitvalswegen- Gratis parkeren

Map