Rental property Hoensbroek

Akkerweide 204, Hoensbroek

Quick summary

Location
Hoensbroek
Rental price
€682.96
Property type
Appartement
Area:
(not set)
Rooms:
2
Beds:
1
Waiting time:
(not set)
Date available:
Nov 18, 2025
Maximum income:
€39.055.00
Status:
Expired

Property description

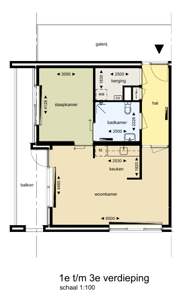
Appartement met 1 slaapkamer aan de Akkerweide in de wijk Mariarade-Zuid, Hoensbroek. Binnenkomst via de hal met toegang tot de woonkamer met open keuken, de badkamer en de inpandige bergruimte. De slaapkamer en het balkon bereikt u via de woonkamer. De badkamer is ruim opgezet en ingedeeld met een douche, toilet en wastafel. Aan de voorzijde van het appartementencomplex ligt een bushalte. Vanuit de Akkerweide bent u met de auto binnen 5 minuten in het centrum van Hoensbroek en binnen 15 minuten in Heerlen. _Wilt u in aanmerking komen voor deze woning? Zorg dan dat u de volgende gegevens heeft ge pload naar uw inschrijving bij Thuis in Limburg:_ _**_Maak uw BSN-nummer overal onleesbaar voordat onderstaande bestanden gaat uploaden_**_ * _Inkomstenverklaring over 2023 of 2024 van de Belastingdienst (ook indien eigen bedrijf!); de meest recente is te downloaden via_[ _www.belastingdienst.nl_](https://eur03.safelinks.protection.outlook.com/?url=http%3A%2F%2Fwww.belastingdienst.nl%2F&data=05%7C02%7Ccentraleplanning%40woonpunt.nl%7C357af9b9e144454feba108ddaa46c439%7C95a8d37e25b4448587e9e53389477c1b%7C0%7C0%7C638853943109533015%7CUnknown%7CTWFpbGZsb3d8eyJFbXB0eU1hcGkiOnRydWUsIlYiOiIwLjAuMDAwMCIsIlAiOiJXaW4zMiIsIkFOIjoiTWFpbCIsIldUIjoyfQ%3D%3D%7C0%7C%7C%7C&sdata=TZtmyHmxJgbynNxyyaAFoyXWRXLubsUYA1h%2FMXIWB8c%3D&reserved=0) _of via 0800-0543 op te vragen (vanaf 1 maart 2025 kunt u aangifte doen over 2024)._ * _Recente salarisstroken van de laatste 3 maanden of een recente (AOW)uitkeringsspecificatie en indien van toepassing een recente pensioenspecificatie._ * _Uittreksel BRP (Basis Registratie Personen) dat niet ouder is dan 6 maanden en waarop uw adreshistorie is te zien. Dit kunt u (online) aanvragen bij uw Gemeente. Als u huurder bent van Woonpunt, hoeft u dit niet aan te leveren._ * _Een recente verhuurdersverklaring van uw huidige verhuurder (of als u momenteel inwoont, van uw laatst gehuurde woning), waaruit blijkt dat u de maandelijkse huur op tijd betaalt en geen overlast veroorzaakt. Als u al huurder bent van Woonpunt f als u nog thuis bij uw ouders woont, hoeft u dit niet aan te leveren._ * _Kunt u geen recente verhuurdersverklaring aanleveren van uw huidige of vorige verhuurder? Dan voegt u een duidelijke en geloofwaardige verklaring toe, waarom dat niet mogelijk is._ * _Heeft u een koopwoning? Dan ontvangen wij graag een recente hypotheekverklaring. Heeft u uw koopwoning recent verkocht? Dan ontvangen wij graag een verkoopovereenkomst van de verkochte woning._ * _Akkoord verhuizing van uw bewindvoerder en/of uw budgetbeheer (indien van toepassing)._ _**Let op: Als u niet op tijd alle documenten heeft ge pload, slaan wij u over voor deze woning.**_ _**Belangrijk**_ _Als u niet aan onderstaande voorwaarden voldoet, dan heeft Woonpunt het recht u deze woning te weigeren:_ * _Als uw inkomen en/of gezinssamenstelling niet passend wordt bevonden;_ * _U niet op tijd alle documenten ge pload heeft;_ * _U huurachterstand heeft of overlast veroorzaakt bij uw huidige verhuurder._ _Aan deze advertentie kunnen geen rechten worden ontleend._

Map