Rental property Maastricht

Bourgognestraat 53D, Maastricht

Quick summary

Location
Maastricht
Rental price
€731.93
Property type
Appartement
Area:
60 m2
Rooms:
3
Beds:
2
Waiting time:
(not set)
Date available:
Oct 18, 2025
Maximum income:
€39.055.00
Status:
Expired

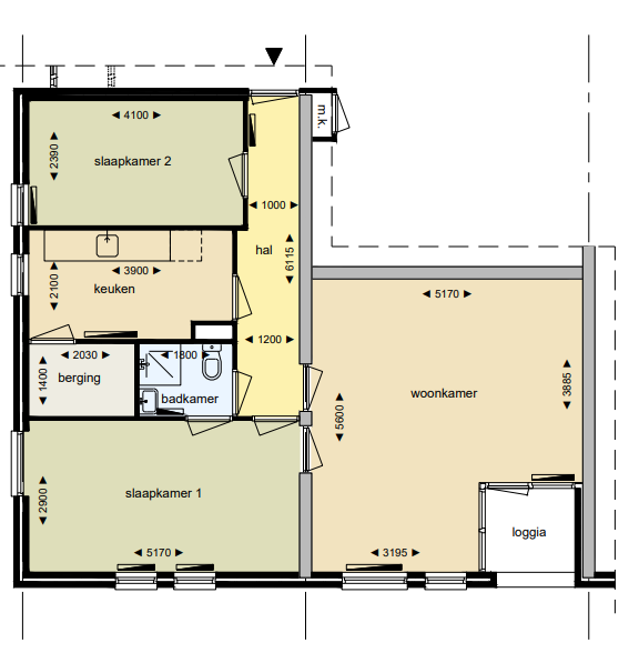
Property description

Appartement met 2 slaapkamers op de 3e verdieping aan de Bourgognestraat in Wyck. Er is een lift aanwezig. Bij binnenkomst komt u uit in de hal die toegang geeft tot alle vertrekken. De woonkamer geeft toegang tot het balkon. Er is een gesloten keuken met inpandige berging en eigen CV ketel. De geheel vernieuwde badkamer bestaat uit een douche, toilet en wastafel. Huurprijs is inclusief waterverbruik. Wyck is een onderdeel van het stadsdeel Centrum en heeft een bijzondere historische uitstraling.Het centraal station en busstation liggen op loopafstand van het pand. Daarnaast zijn er talloze winkels, hotels, caf s en restaurants te vinden. In de Stationsstraat worden vaker antiek- en curiosamarkten gehouden. Wilt u in aanmerking komen voor deze woning? Zorg dan dat u de volgende gegevens heeft ge pload naar uw inschrijving bij Thuis in Limburg: Maak uw BSN-nummer overal onleesbaar voordat onderstaande bestanden gaat uploaden: * _Inkomstenverklaring over 2023 of 2024 van de Belastingdienst (ook indien eigen bedrijf!); de meest recente is te downloaden via_[ _www.belastingdienst.nl_](https://eur03.safelinks.protection.outlook.com/?url=http%3A%2F%2Fwww.belastingdienst.nl%2F&data=05%7C02%7Ccentraleplanning%40woonpunt.nl%7C357af9b9e144454feba108ddaa46c439%7C95a8d37e25b4448587e9e53389477c1b%7C0%7C0%7C638853943109533015%7CUnknown%7CTWFpbGZsb3d8eyJFbXB0eU1hcGkiOnRydWUsIlYiOiIwLjAuMDAwMCIsIlAiOiJXaW4zMiIsIkFOIjoiTWFpbCIsIldUIjoyfQ%3D%3D%7C0%7C%7C%7C&sdata=TZtmyHmxJgbynNxyyaAFoyXWRXLubsUYA1h%2FMXIWB8c%3D&reserved=0) _of via 0800-0543 op te vragen (vanaf 1 maart 2025 kunt u aangifte doen over 2024)._ * _Recente salarisstroken van de laatste 3 maanden of een recente (AOW)uitkeringsspecificatie en indien van toepassing een recente pensioenspecificatie._ * _Uittreksel BRP (Basis Registratie Personen) dat niet ouder is dan 6 maanden en waarop uw adreshistorie is te zien. Dit kunt u (online) aanvragen bij uw Gemeente. Als u huurder bent van Woonpunt, hoeft u dit niet aan te leveren._ * _Een recente verhuurdersverklaring van uw huidige verhuurder (of als u momenteel inwoont, van uw laatst gehuurde woning), waaruit blijkt dat u de maandelijkse huur op tijd betaalt en geen overlast veroorzaakt. Als u al huurder bent van Woonpunt f als u nog thuis bij uw ouders woont, hoeft u dit niet aan te leveren. Kunt u geen recente verhuurdersverklaring aanleveren van uw huidige of vorige verhuurder? Dan voegt u een duidelijke en geloofwaardige verklaring toe, waarom dat niet mogelijk is._ * _Heeft u een koopwoning? Dan ontvangen wij graag een recente hypotheekverklaring. Heeft u uw koopwoning recent verkocht? Dan ontvangen wij graag een verkoopovereenkomst van de verkochte woning._ * _Akkoord verhuizing van uw bewindvoerder en/of uw budgetbeheer (indien van toepassing)._ _**Let op: Als u niet op tijd alle documenten heeft ge pload, slaan wij u over voor deze woning.**_ **Belangrijk** Als u niet aan onderstaande voorwaarden voldoet, dan heeft Woonpunt het recht u deze woning te weigeren: * Als uw inkomen en/of gezinssamenstelling niet passend wordt bevonden; * U niet op tijd alle documenten ge pload heeft; * U huurachterstand heeft of overlast veroorzaakt bij uw huidige verhuurder. Aan deze advertentie kunnen geen rechten worden ontleend.

Map