Rental property Weert

Graafschap Hornelaan 45, Weert

Quick summary

Location
Weert
Rental price
€930.00
Property type
Appartement
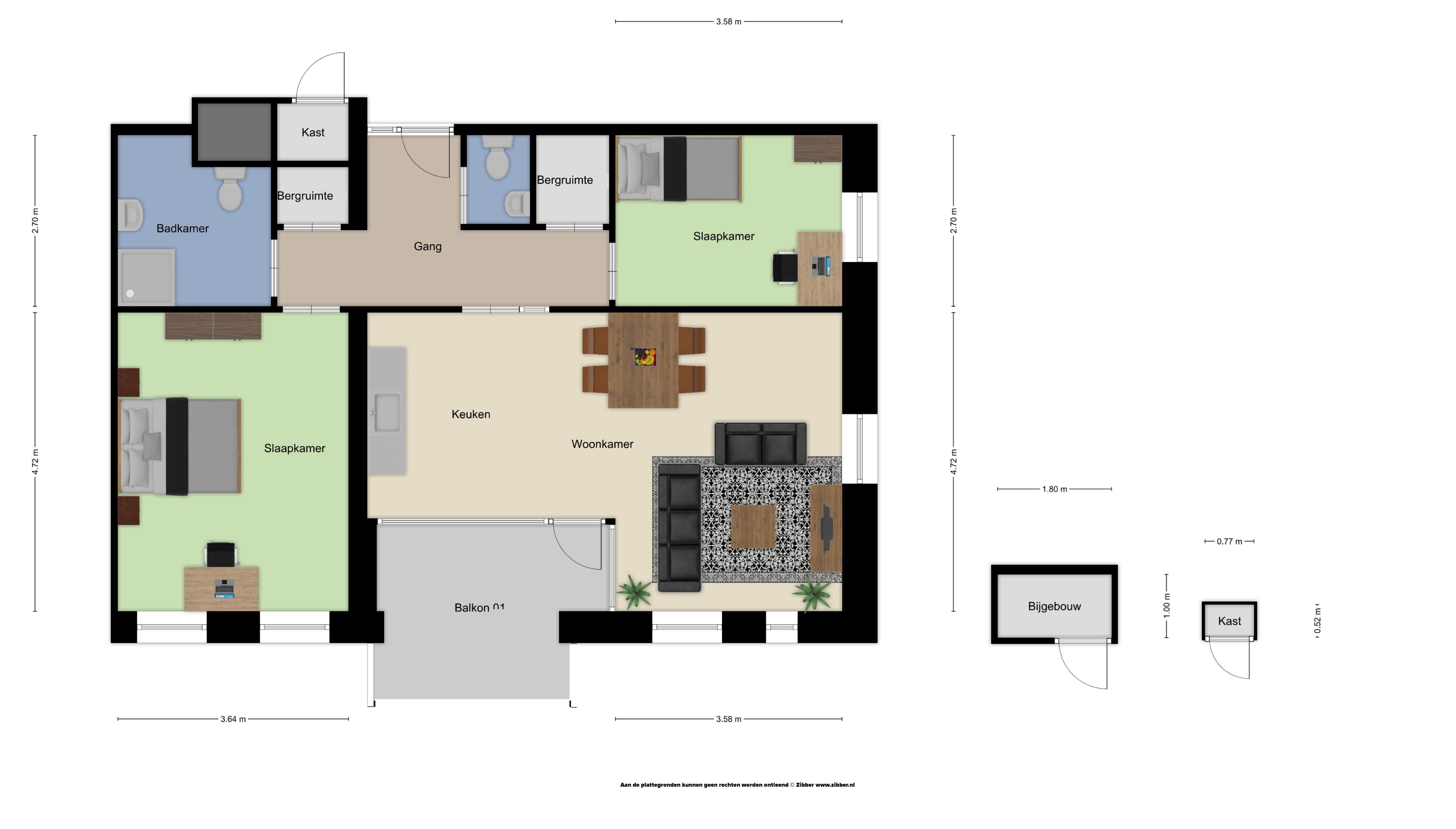
Area:
86 m2
Rooms:
3
Beds:
2
Waiting time:
(not set)
Date available:
Apr 12, 2024
Maximum income:
(not set)
Status:
Expired

Property description

Zorgappartement in het centrum van Weert Vele voorzieningen op loopafstand Voorrang voor 55+ **Waarom wil je hier wonen?** Dit ruime appartement bevindt zich aan de Graafschap Hornelaan 45 a in Weert. Binnen enkele minuten wandelen bevind je je in het gezellige centrum van Weert met winkels, supermarkten, bioscopen, musea en alle denkbare voorzieningen. Dit fraaie appartement heeft 2 slaapkamers en is gelegen op de 4e verdieping. Het appartement bevindt zich in het nieuwe (2017) complex aan de Graafschap Hornelaan. Bovendien is er zorg mogelijk via Land van Horne. Aan de Graafschap Hornelaan is wonen in een moderne omgeving op een toplocatie in Weert. \- Energielabel A \- Bouwjaar 2017 \- Voorrang 55+ \- 2 slaapkamers \- Inclusief parkeerplaats \- 86m2 woonoppervlakte **Bijzonderheden** \- Huurperiode: minimaal 1 jaar \- Huurprijs en ingangsdatum zijn onder voorbehoud \- Indien de vertrekkende huurder zaken ter overname aanbiedt, wordt dit bij de toewijzing kenbaar gemaakt. **Inkomensnorm** Om in aanmerking te kunnen komen voor een woning via Wonen Limburg Accent dien je minimaal een bruto maandinkomen te hebben van 3,5 keer de maandhuur. Hierin tellen vakantiegeld en een eventuele 13e maand mee. Voor deze woning betekent het dat je minimaal 39.060,- moet verdienen. Verdien je minder, maar wel minimaal 34.060,-? Dan kun je in aanmerking komen mits er eigen vermogen is van 30.000,-. Beschik je over eigen vermogen? Dit kun je aantonen d.m.v. een bankafschrift van een spaarrekening, dan nemen wij dit mee in de beoordeling. Aan deze informatie kunnen geen rechten worden ontleend. De gebruikte foto s en plattegronden zijn ter indicatie en kunnen afwijken van de werkelijkheid.

Map