Rental property Etten-Leur

Laurierhof 53, Etten-Leur

Quick summary

Location
Etten-Leur
Rental price
€682.96
Property type
Portiekwoning
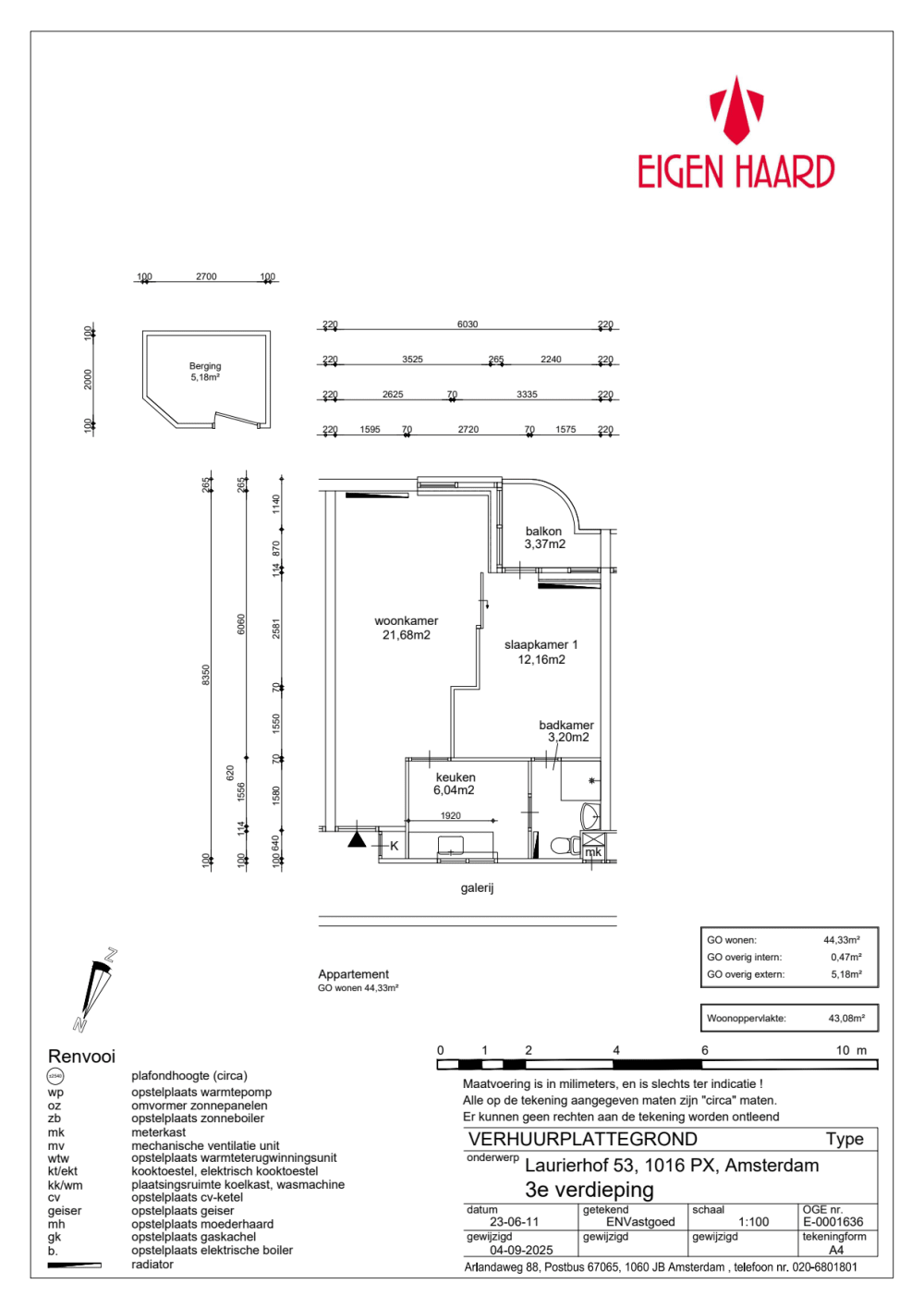
Area:
43 m2
Rooms:
2
Beds:
1
Waiting time:
(not set)
Date available:
Nov 11, 2025
Maximum income:
€39.055.00
Status:
Expired

Property description

SENIORENWONING, GEEN INWONENDE KINDEREN TOEGESTAAN!BijzonderhedenWoning is niet geschikt voor huishoudens met kinderen.Seniorenwoning.Servicekosten zijn nog niet definitief, deze worden definitief gemaakt zodra het contract wordt opgesteld. Wat er in de advertentie staat is een schatting.Stookkosten zitten in de service kostenGehorige woningLift aanwezigParkeren/ met vergunning:Linknaar gemeente Amsterdam.De woning3e verdieping (met lift)2 kamerwoningGesloten keukenBadkamer met toiletWasmachine aansluiting in de keukenBerging 5m2BalkonBuurtCentraal station op 10 minuten afstandMidden in de JordaanAlbert Heijn op 5 minuten lopenDiverse (afhaal) restaurants in de omgevingWelke voorzieningen zijn er in de buurt? Kijk bij tabblad Buurt om meer over de buurt te weten te komen.SeniorenwoningU moet minimaal 55 jaar oud zijn.Personen van 65 jaar en ouder hebben voorrang.Inwonende kinderen zijn niet toegestaan.Let op:woningkenmerken, plattegrond en huurprijs zijn nog onder voorbehoud. Klik hier voor meer informatie.https://www.woningnetregioamsterdam.nl/Nieuws/Huurprijzen%20onder%20voorbehoud%20bij%20Eigen%20HaardTechnische staat :We leveren de woning volgens de Eigen Haard standaard op. Voor meer informatie kijkt u op onze site. Houd er rekening mee dat u zelf ook nog het een en ander moet doen om de woning naar uw smaak te maken. Denk aan schilderen van de muren en plafonds, afstomen van behang en/ of het leggen van een vloer.https://www.eigenhaard.nl/weten-en-regelen/sociale-huur/nieuwe-huurders/oplevering#F4BBB11819D44A4184749E7F8DD30BD7Wilt u de woning huren?Voor meer informatie over welke documenten u nog meer moet inleveren op het moment dat u eerste kandidaat wordt voor de woning, kijkt u op onze website.https://www.eigenhaard.nl/weten-en-regelen/sociale-huur/nieuwe-huurders/acceptatie-en-toewijzing

Map