Rental property Amstelveen

Westelijk Halfrond 329, Amstelveen

Quick summary

Location
Amstelveen
Rental price
€904.10
Property type
Appartement
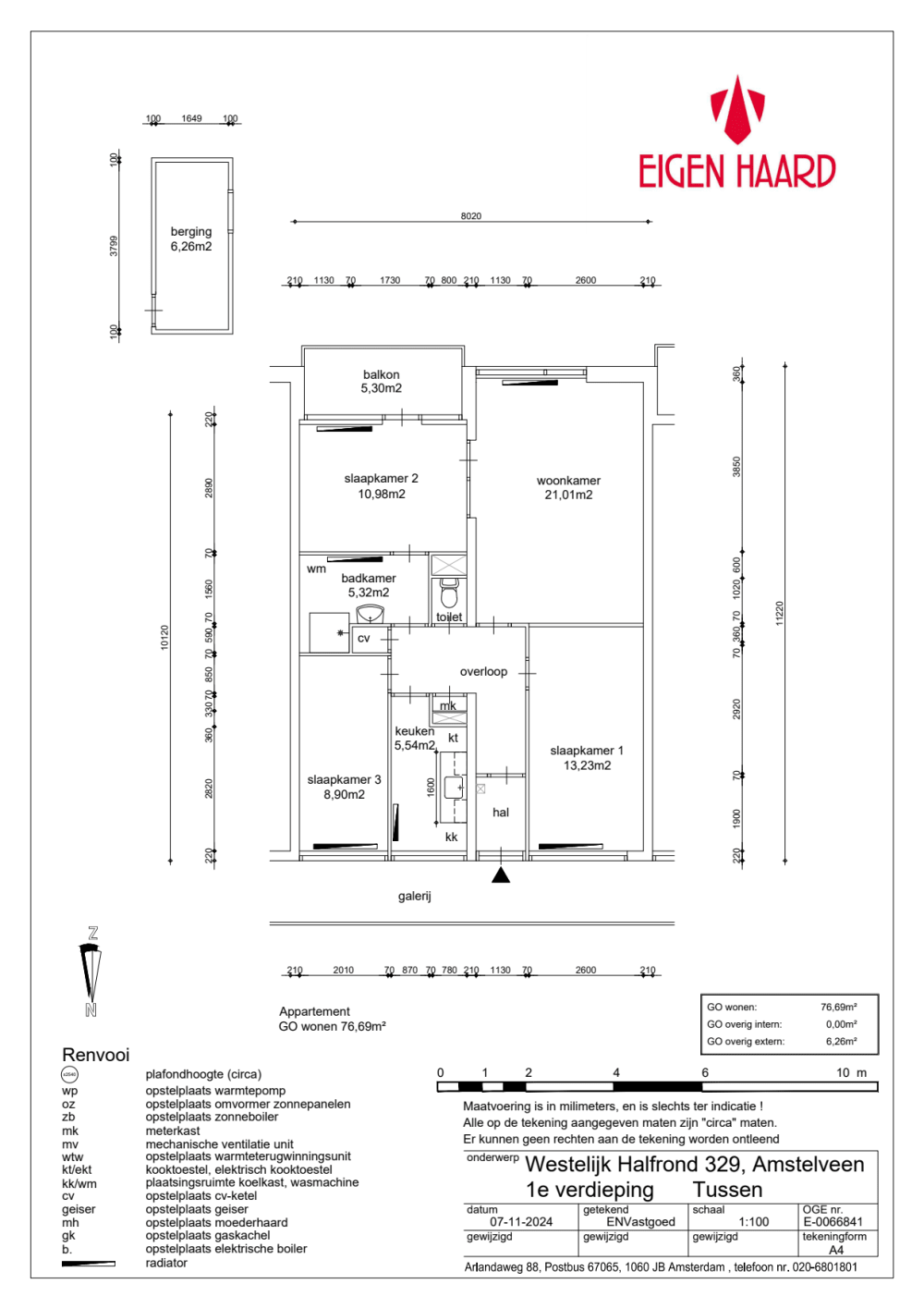
Area:
65 m2
Rooms:
4
Beds:
3
Waiting time:
(not set)
Date available:
Jan 15, 2025
Maximum income:
(not set)
Status:
Expired

Property description

Bijzonderheden:Voorrang kleine gezinnen:Deze woning is met voorrang bestemd voor kleine gezinnen. Dit zijn huishoudens met één of twee kinderen. Minimaal één van de kinderen moet jonger dan 18 jaar zijn.Zoek op dewebsite van Woningnetop “kleine gezinnen” om uitleg en de voorwaarden te lezen. De voorrang voor kleine gezinnen wordt pas gecontroleerd n dat u op de nummer 1 positie bent gekomen en de woning aangeboden heeft gekregen.Parkeerbeleid: niet gratis parkerenOmgeving: U kunt hinder ondervinden van vliegtuigverkeerDe woningVier kamer woningBalkon op het zuidenBerging op de begane grondWasmachine aansluiting in de badkamerSmalle keuken en koken is op gasKleine badkamerDe BuurtWoning ligt in de wijk kostverlorenBetaald parkeren voor de deurSupermarkten op loopafstandOpenbaar vervoer op loopafstandBasisschool in de buurtLet op:woningkenmerken, plattegrond en huurprijs zijn nog onder voorbehoud. Klikhiervoor meer informatie.Technische staatWe leveren de woning volgens de Eigen Haard standaard op.  Voor meer informatie kijkt u op onzesite.Houd er rekening mee dat u zelf ook nog het een en ander moet doen om de woning naar uw smaak te maken. Denk aan schilderen van de muren en plafonds, afstomen van behang en/ of het leggen van een vloer.Wilt u de woning huren?Voor meer informatie over welke documenten u nog meer moet inleveren op het moment dat u eerste kandidaat wordt voor de woning, kijkt u op onzewebsite

Map