Rental property Amsterdam

Albert Camuslaan 46, Amsterdam

Quick summary

Location
Amsterdam
Rental price
€798.51
Property type
Portiekwoning
Area:
50 m2
Rooms:
2
Beds:
1
Waiting time:
(not set)
Date available:
Jun 20, 2025
Maximum income:
(not set)
Status:
Expired

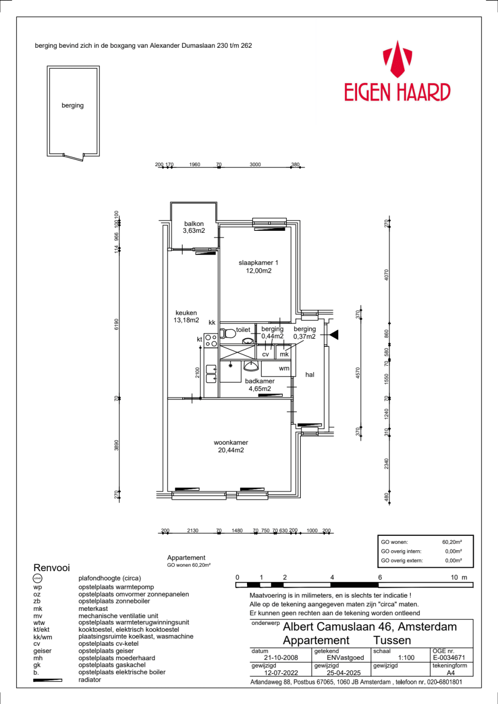
Property description

De woningWoonkamer met afgesloten keuken1 slaapkamerWoning aan de voorzijdeWasmachine aansluiting in de badkamerApart toilet in de halbalkonberging op de begane grondIn de buurtde Albert Camuslaan heeft winkels, supermarkt en horecaEen praktijkschoolJeugdcentrumOpenbaar vervoer (ongeveer 3 minuten lopen)Metro Station Duivendrecht  (ongeveer 5 minuten lopen)HorecaSportparkSingelsLet op:woningkenmerken, plattegrond en huurprijs zijn nog onder voorbehoud. Klikhiervoor meer informatie.Technische staatWe leveren de woning volgens de Eigen Haard standaard op.  Voor meer informatie kijkt u op onzesite.Houd er rekening mee dat u zelf ook nog het een en ander moet doen om de woning naar uw smaak te maken. Denk aan schilderen van de muren en plafonds, afstomen van behang en/ of het leggen van een vloer.Wilt u de woning huren?Voor meer informatie over welke documenten u nog meer moet inleveren op het moment dat u eerste kandidaat wordt voor de woning, kijkt u op onzewebsiteParkerenOptioneel is het mogelijk om in de omgeving een parkeerplaats te huren. Bekijk ons aanbod op dewebsitevan Eigen Haard.Informatie parkeren Amsterdam:Link

Map