Rental property Amsterdam

Andreas Schelfhoutstraat 58, Amsterdam

Quick summary

Location
Amsterdam
Rental price
€772.96
Property type
Portiekwoning
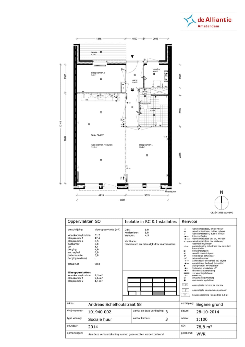
Area:
63 m2
Rooms:
3
Beds:
2
Waiting time:
(not set)
Date available:
Jul 28, 2025
Maximum income:
(not set)
Status:
Expired

Property description

Servicekosten zijn onder voorbehoud.Niet geschikt voor een gezin met nog inwonende kinderenWoning:Woning op de benedenverdiepingRuime woonkamer2 slaapkamersRuimte voor koelkast en gasfornuisWasmachine aansluiting in de bergingMechanische ventilatie in badkamerToilet in de gangBergruimte in de algemene ruimteCV installatieRamen dubbelglasWoonomgeving:Gelegen in de Amsterdam ZuidUitzicht op wooncomplexenBetaald parkeren in de omgevingOpenbaar vervoer bereikbaar op loopafstandZie ook tabblad BuurtOpleverstatus:Wij leveren de woning volgens Alliantie-standaard opHoud er rekening mee dat u zelf nog wat aan de woning moet doen, denk aan schilderen van de muren en plafonds en het leggen van een vloer

Map