Rental property Amsterdam

Arie Biemondstraat 168, Amsterdam

Quick summary

Location
Amsterdam
Rental price
€905.41
Property type
Portiekwoning
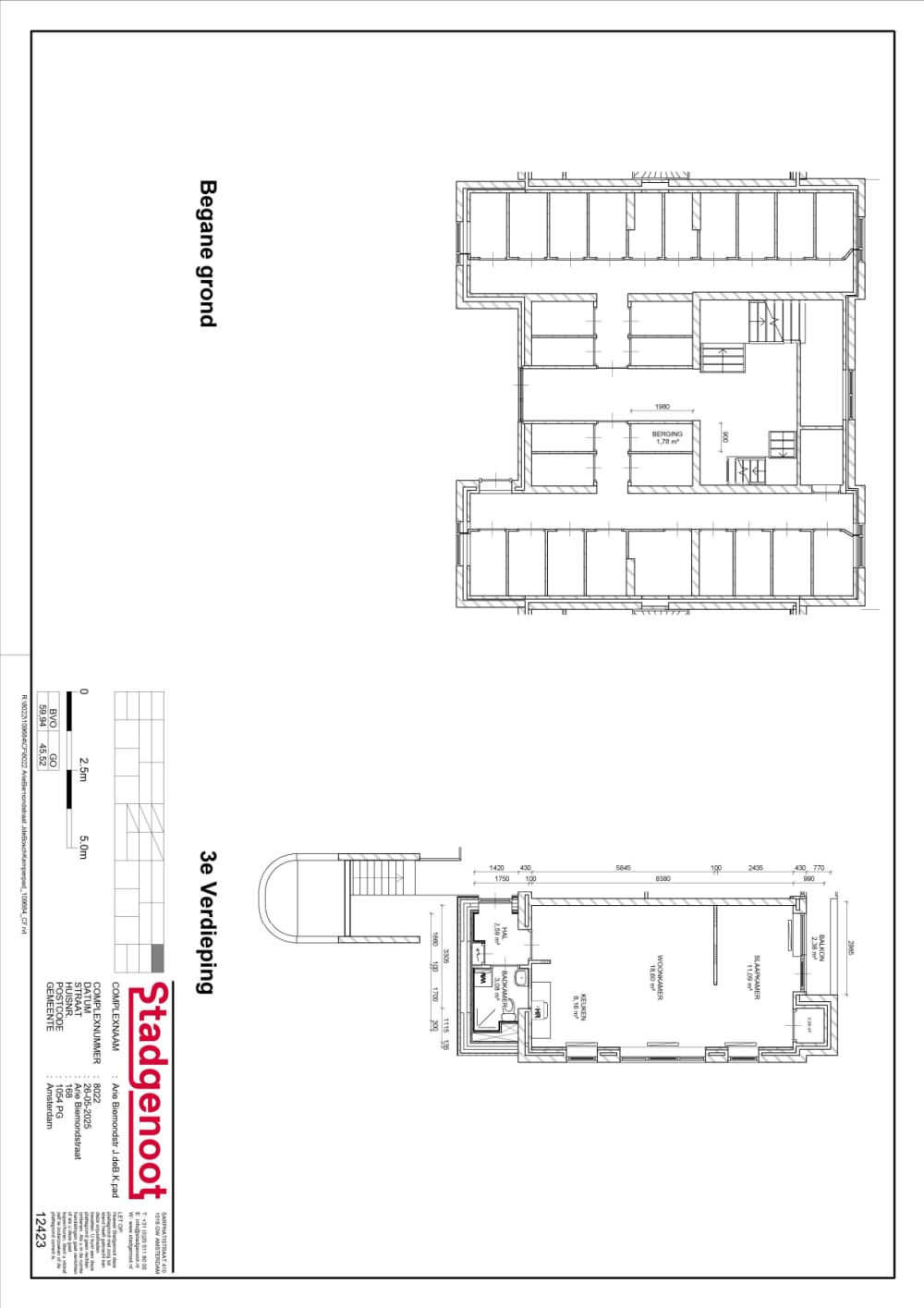
Area:
42 m2
Rooms:
2
Beds:
1
Waiting time:
(not set)
Date available:
Jun 11, 2025
Maximum income:
(not set)
Status:
Expired

Property description

Tweekamerwoning op de derde etage bereikbaar met trappen( bovenste verdieping) gelegen in West. Jongeren tot 23 jaar.WoningOpen keukenKoken op gasSlaapkamer is niet af te sluitenToilet in de badkamerWasmachineaansluiting in de badkamerBalkon op het OostenBalkon grenst aan slaapkamerBetonnen vloerBuurtOp loopafstand van openbaar vervoer, park, scholen en winkels.Op loopafstand van cultureel centrum De Hallen.Betaald parkeren.Parkeren: bij sommige woningen wordt vanuit de gemeente geen parkeervergunning afgegeven.Benieuwd of het bij deze woning mogelijk is een parkeervergunning te verkrijgen? Kijk ophttps://www.amsterdam.nl/parkeren-verkeer/parkeervergunning/parkeervergunning-bewoners/) of neem contact op met de gemeente voor meer informatie. Soms is het mogelijk om in de omgeving via Stadgenoot een eigen parkeerplaats te huren. Bekijk ons huuraanbod ophttps://aanbod.stadgenoot.nl/parkeerplaatsen/huuraanbod.”Verzamel uw documenten op tijdWordt  u na de selectiedatum uitgenodigd voor de bezichtiging? Verzamel dan alvast uw documenten. Wij vragen u uw documenten binnen 3 dagen aan te leveren als u 1e kandidaat bent voor de woning. Lees hier welke documenten u moet aanleveren:Aan te leveren documenten.Aanvullende voorwaardenAls u kinderen heeft komt u niet in aanmerking voor deze woning.Deze jongerenwoning is niet bestemd voor studenten, die een voltijd opleiding volgen aan een universiteit, HBO of MBO in de regio Amsterdam.Technische staatStadgenoot levert de woning schoon, heel en veilig aan u op. Houd er rekening mee dat u zelf nog wat aan de woning moet doen. Denk aan schilderen van de muren en plafonds, afstomen van behang en/of het leggen van een vloer.Let op:Woningkenmerken en plattegrond kunnen mogelijk iets afwijken van de werkelijkheid. Bijvoorbeeld omdat wij nog werkzaamheden moeten uitvoeren na de bezichtiging. De basis zoals het aantal kamers en het type woning staan vast.

Map