Rental property Amsterdam

Blankenstraat 98, Amsterdam

Quick summary

Location
Amsterdam
Rental price
€702.96
Property type
Portiekwoning
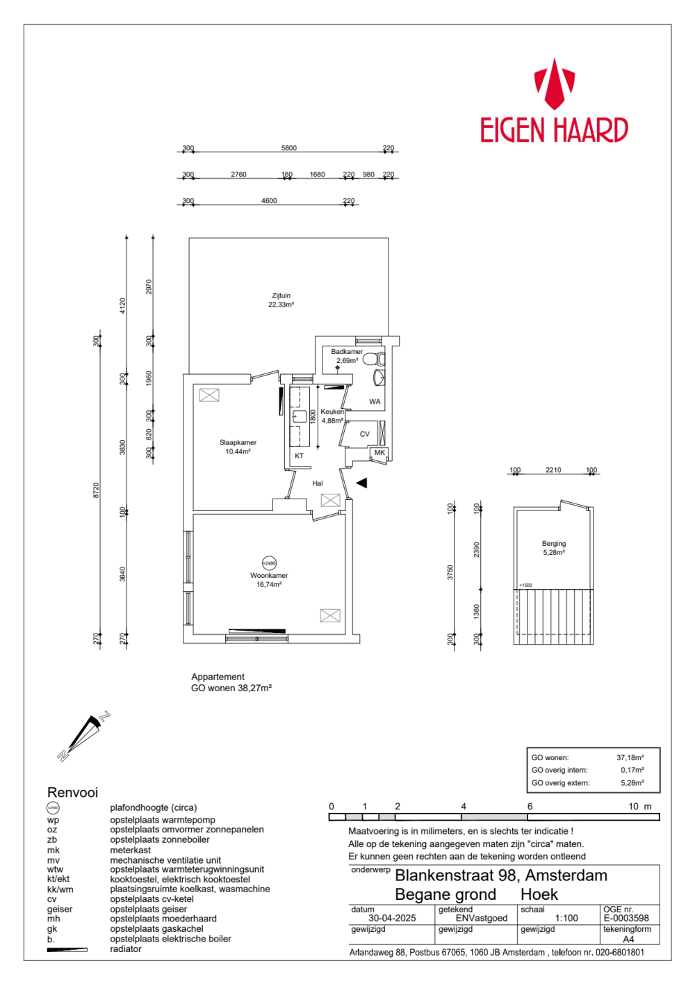
Area:
33 m2
Rooms:
2
Beds:
1
Waiting time:
(not set)
Date available:
May 12, 2025
Maximum income:
€39.055.00
Status:
Expired

Property description

BijzonderhedenWoning is niet geschikt voor huishoudens met kinderenWoningen zijn verouderd. Er zijn plannen in voorbereiding voor een aanpak op middellange termijn (naar verwachting binnen 5 jaar, meer duidelijkheid)Betaald parkeren/ met vergunning: zie voor meer informatie website gemeente AmsterdamDe woning2- kamerwoningSmalle badkamer met toiletWasmachine aansluiting in smalle badkamer !koken op gasKleine, smalle keukenGehorige woningenBuurtNabij Bierbrouwerij het IJNabij sportschoolNabij supermarktNabij openbaar vervoer10 minuten fietsen naar Centraal StationWelke voorzieningen zijn er in de buurt? Kijk bij tabblad Buurt om meer over de buurt te weten te komen.Let op:woningkenmerken, plattegrond en huurprijs zijn nog onder voorbehoud. Klik hier voor meer informatie:https://www.woningnetregioamsterdam.nl/Nieuws/Huurprijzen%20onder%20voorbehoud%20bij%20Eigen%20HaardTechnische staatWe leveren de woning volgens de Eigen Haard standaard op.  Voor meer informatie kijkt u op onze site:https://www.eigenhaard.nl/weten-en-regelen/sociale-huur/nieuwe-huurders/oplevering#F4BBB11819D44A4184749E7F8DD30BD7Houd er rekening mee dat u zelf ook nog het een en ander moet doen om de woning naar uw smaak te maken. Denk aan schilderen van de muren en plafonds, afstomen van behang en/ of het leggen van een vloer.Wilt u de woning huren?Voor meer informatie over welke documenten u nog meer moet inleveren op het moment dat u eerste kandidaat wordt voor de woning, kijkt u op onze website:https://www.eigenhaard.nl/weten-en-regelen/sociale-huur/nieuwe-huurders/acceptatie-en-toewijzingInkomensverklaringControleert u voordat u gaat reageren op deze woning, of uw recente inkomen staat genoteerd in Woningnet. Dit voorkomt teleurstelling.

Map