Rental property Amsterdam

Boeninlaan 112, Amsterdam

Quick summary

Location
Amsterdam
Rental price
€983.24
Property type
Portiekwoning
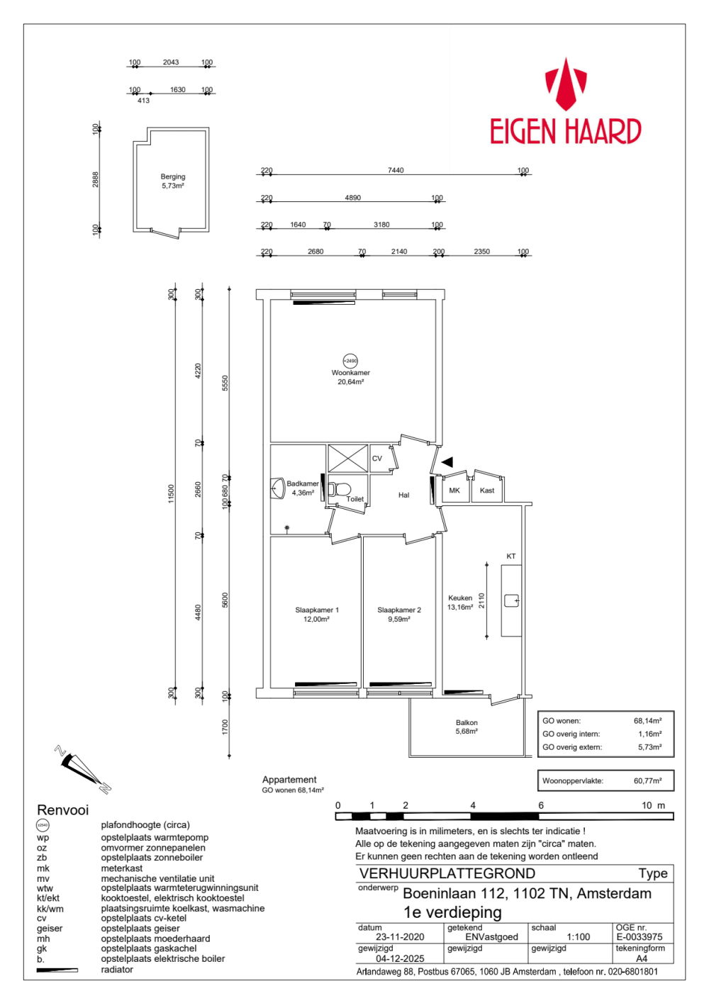
Area:
59 m2
Rooms:
3
Beds:
2
Waiting time:
(not set)
Date available:
Feb 4, 2026
Maximum income:
(not set)
Status:
Published
Respond

Property description

Tip!Verzamelde benodigde documentenalvast. Je hebt zemeteenna de bezichtiging nodig.Voorrang kleine gezinnenOver de buurtVensepolder Amsterdam Zuid-OostIn de buurt van het Nelson Mandelapark.Op fietsafstand winkelcentrum de Amsterdamse PoortKlein winkelcentrum in de buurt.Nabij OV, metro Strandvliet (5 minuten lopen)Indeling van de woning3e etageGeen liftGesloten keuken, koken op gas2 slaapkamersNette badkamer met douche en wasmachine aansluitingApart toiletBalkon achterBerging op de begane grondParkerenWij verwijzen je naar degemeentevoor informatie hierover. Optioneel is het mogelijk om in de omgeving een parkeerplaats te huren. Er kunnen wachtlijsten zijn. Bekijk onsparkeeraanbod.ToewijzingEigen Haard verhuurt huurwoningen in het middensegment op basis van het actuele inkomen (inkomen op dit moment). Zorg er daarom voor dat je actuele inkomen staat ingevuld in je profiel vóórdat je reageert op de woning. Laat dit bedrag vervolgens in je profiel staan totdat de selectie van de woning is geweest. Doe je dit niet? Dan kan het zijn dat wij je bij de gegevenscontrole moeten afwijzen voor de woning. Bekijk hier hoe je het actuelegezamenlijk jaarinkomenbepaald.Het actuele inkomen van jou en je eventuele medeaanvrager tellen beide voor 100% mee.Als je zelfstandig ondernemer (zzp'er) bent, dan moet je minimaal 2 jaar werkzaam zijn als zelfstandig ondernemer in de huidige onderneming. Ben je niet minimaal 2 jaar werkzaam als zelfstandig ondernemer in de huidige onderneming, dan kom je niet in aanmerking voor de woning.Eigen Haard wil graag passend verhuren,kijkwat dat voor jou betekent.Doorstromers krijgen voorrang bij Eigen Haard. Bij Eigen Haard is een doorstromer iemand die een zelfstandige sociale huurwoning van een corporatie leeg achterlaat binnen stadsregio Amsterdam.Hierleggen we je uit wat het verschil is tussen een doorstromer en een instromer.Huur je van Eigen Haard een sociale huurwoning en laat je die leeg achter? Je krijgt dan voorrang op andere doorstromers en er geldt voor jou geen maximale inkomenseis, wel de minimale inkomenseis.

Map