Rental property Amsterdam

Burgemeester Eliasstraat 31, Amsterdam

Quick summary

Location
Amsterdam
Rental price
€689.13
Property type
Portiekwoning
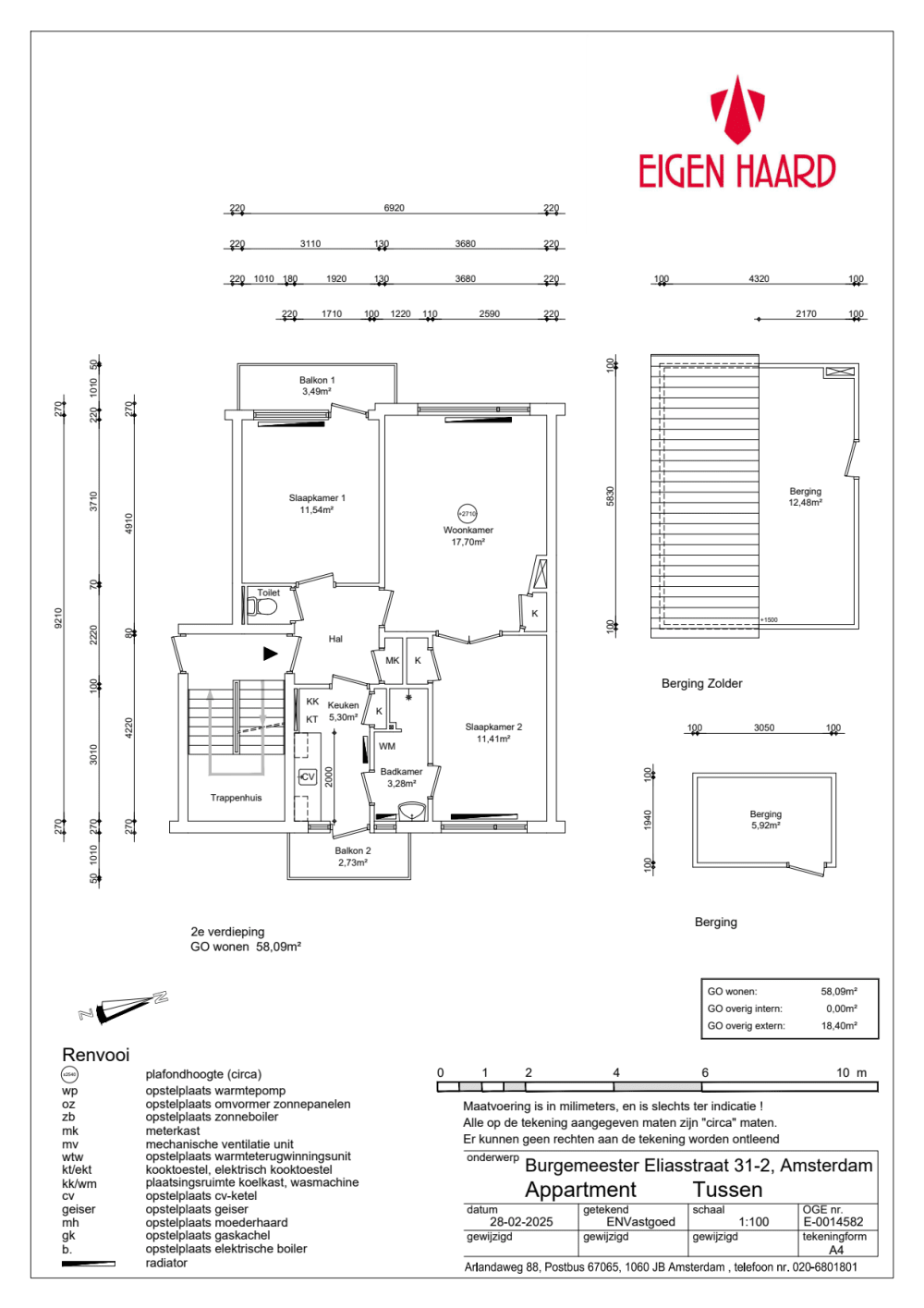
Area:
49 m2
Rooms:
3
Beds:
2
Waiting time:
(not set)
Date available:
Mar 11, 2025
Maximum income:
€39.055.00
Status:
Expired

Property description

De woningDe woning gelegen de tweede verdiepingHet complex heeft geen liftBadkamer apartToilet apartKoken op gasAparte smalle keuken van 5m2, het plaatsen van een grote koelkast is niet mogelijkDe woning heeft een berging buiten de woningDe woning heeft een zolder op de bovenste verdieping2 smalle balkonsIn de buurtWinkelcentrum plein '45-45 op loopafstandBasisschool op loopafstandHoreca op loopafstandOpenbaar vervoer op loopafstandSportscholen in de buurtParkerenEr is een blauwe zone voor de deur. Voor meer informatie over parkeren verwijzen wij u naar Gemeente Amsterdam.Let op:woningkenmerken, energielabel, plattegrond en huurprijs zijn nogonder voorbehoud. Klikhiervoor meer informatie.Technische staatWe leveren de woning volgens de Eigen Haard standaard op.  Voor meer informatie kijkt u op onzesite.Houd er rekening mee dat u zelf ook nog het een en ander moet doen om de woning naar uw smaak te maken. Denk aan schilderen van de muren en plafonds, afstomen van behang en/ of het leggen van een vloer.Wilt u de woning huren?Voor meer informatie over welke documenten u nog meer moet inleveren op het moment dat u eerste kandidaat wordt voor de woning, kijkt u op onzewebsite

Map