Rental property Amsterdam

Derde Looiersdwarsstraat 7, Amsterdam

Quick summary

Location
Amsterdam
Rental price
€723.85
Property type
Portiekwoning
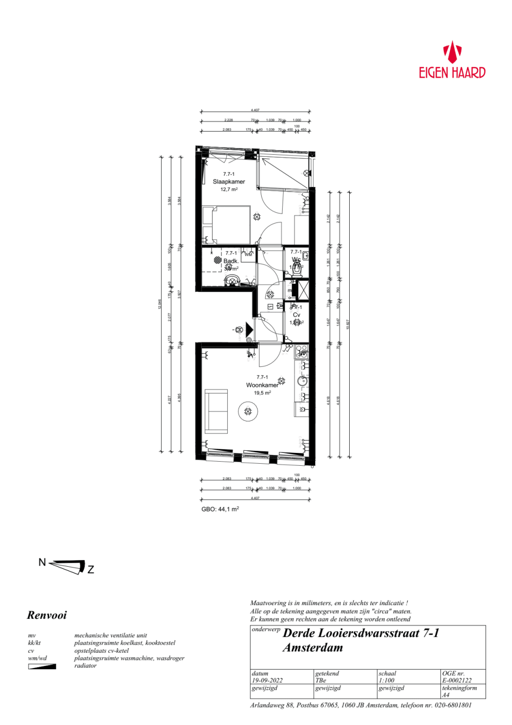
Area:
48 m2
Rooms:
2
Beds:
1
Waiting time:
(not set)
Date available:
Dec 17, 2025
Maximum income:
€39.055.00
Status:
Published
Respond

Property description

BijzonderhedenBetaald parkerenLinknaar gemeente AmsterdamDe servicekosten worden vastgesteld bij het opstellen van de huurovereenkomst en komen bovenop de huurprijs, De servicekosten die nu genoemd zijn is een schatting.Vloer woning gratis over te nemenDe woning1e verdieping2- kamerwoning1 slaapkamerOpen keukenToilet in de halAparte WCWasmachine aansluiting in de badkamerBalkonBergingBuurtOpenbaar vervoer dichtbijDiverse winkels in de omgevingDiverse (afhaal) restaurants in de omgevingWelke voorzieningen zijn er in de buurt? Kijk bij tabblad Buurt om meer over de buurt te weten te komen..Let op:woningkenmerken, plattegrond en huurprijs zijn nog onder voorbehoud. Klik hier voor meer informatie:https://www.woningnetregioamsterdam.nl/Nieuws/Huurprijzen%20onder%20voorbehoud%20bij%20Eigen%20HaardTechnische staatWe leveren de woning volgens de Eigen Haard standaard op.  Voor meer informatie kijkt u op onze site:https://www.eigenhaard.nl/weten-en-regelen/sociale-huur/nieuwe-huurders/oplevering#F4BBB11819D44A4184749E7F8DD30BD7Houd er rekening mee dat u zelf ook nog het een en ander moet doen om de woning naar uw smaak te maken. Denk aan schilderen van de muren en plafonds, afstomen van behang en/ of het leggen van een vloer.Wilt u de woning huren?Voor meer informatie over welke documenten u nog meer moet inleveren op het moment dat u eerste kandidaat wordt voor de woning, kijkt u op onze website:https://www.eigenhaard.nl/weten-en-regelen/sociale-huur/nieuwe-huurders/acceptatie-en-toewijzing

Map