Rental property Amsterdam

Egstraat 20, Amsterdam

Quick summary

Location
Amsterdam
Rental price
€702.96
Property type
Benedenwoning
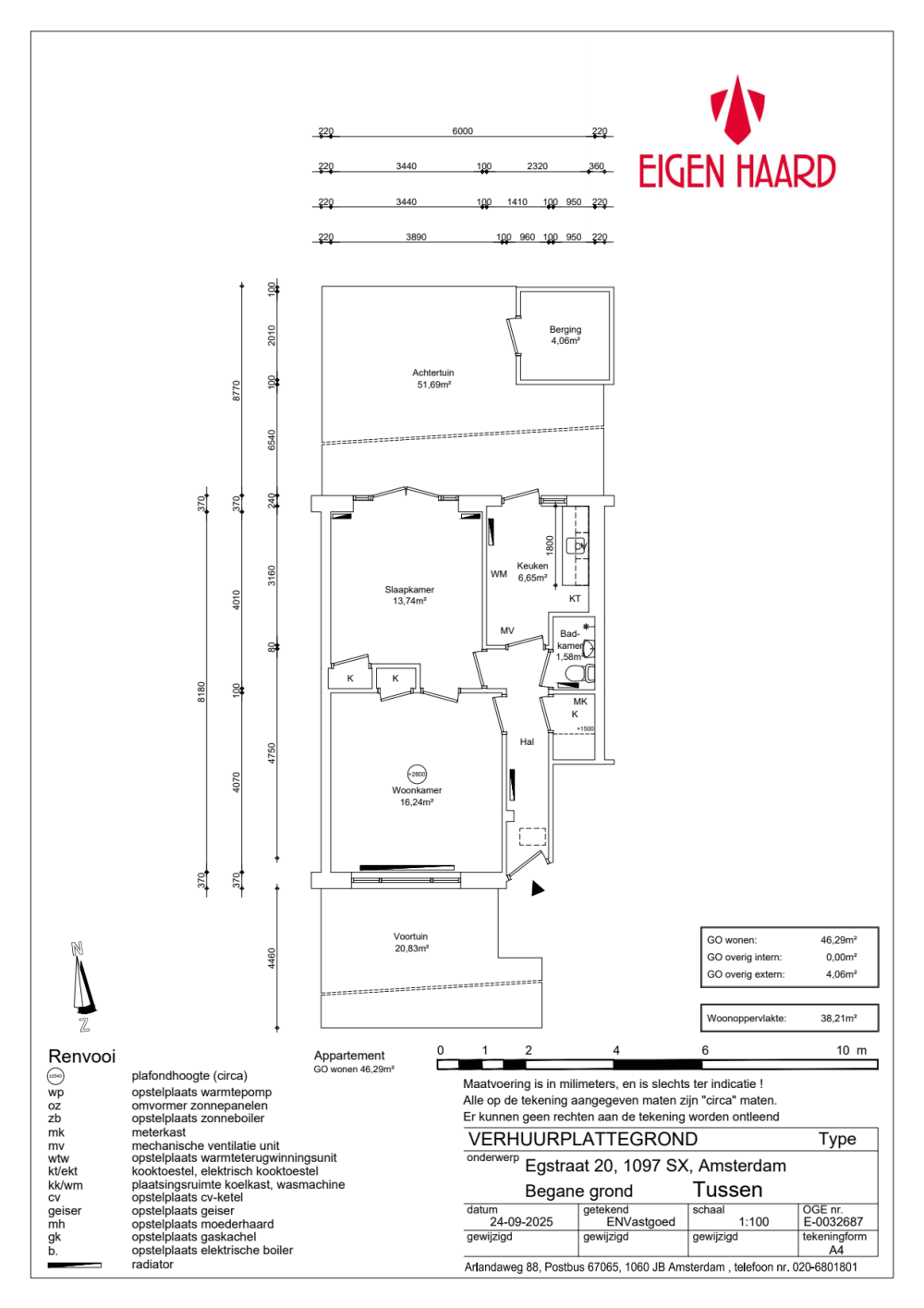
Area:
39 m2
Rooms:
2
Beds:
1
Waiting time:
(not set)
Date available:
Oct 10, 2025
Maximum income:
€39.055.00
Status:
Expired

Property description

Let op: Deze woning heeft een opstapje bij de voordeurBijzonderhedenWoning is reeds gerenoveerd, zie voor meer informatie:https://www.eigenhaard.nl/projecten/betondorp/Gehorige woningWoning met voorrang voor eerst WMO-kandidaten, dan kandidaten van 65 jaar en ouder en Van Hoog Naar Laag-kandidaten.Parkeren mogelijk met vergunningTuin wordt nog onkruidvrij gemaaktDe woningWoonkamer met aparte keuken1 slaapkamerWasmachine aansluiting in keukenToilet in badkamerHouten vloerenTuin aanwezig (onkruid wordt nog weggehaald)Berging aanwezig in tuinIn de buurtWinkelcentrum Helmholtzstraat (5 min. fietsen)Bus- en tramhalte Brinkstraat (5 min. lopen)Veel sportgelegenheden in de buurt (voetbal, tennis, schaatsen)Park Frankendael (ongeveer 7 minuten fietsen)Oprit A10 (2 min. rijden)Let op:woningkenmerken, energielabel, plattegrond en huurprijs zijn nog onder voorbehoud. Klikhiervoor meer informatie.Technische staatWe leveren de woning volgens de Eigen Haard standaard op.  Voor meer informatie kijkt u op onzesite.Houd er rekening mee dat u zelf ook nog het een en ander moet doen om de woning naar uw smaak te maken. Denk aan schilderen van de muren en plafonds, afstomen van behang en/ of het leggen van een vloer.Wilt u de woning huren?Voor meer informatie over welke documenten u nog meer moet inleveren op het moment dat u eerste kandidaat wordt voor de woning, kijkt u op onzewebsite

Map