Rental property Amsterdam

Elzenhagensingel 1711, Amsterdam

Quick summary

Location
Amsterdam
Rental price
€780.16
Property type
Appartement
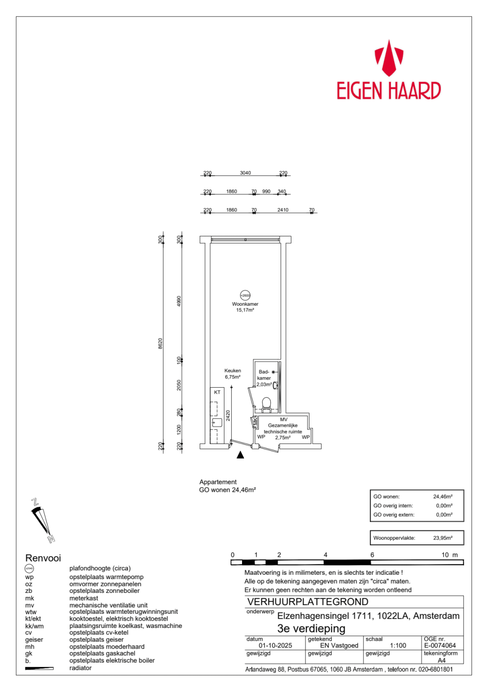
Area:
23 m2
Rooms:
1
Beds:
0
Waiting time:
(not set)
Date available:
Oct 3, 2025
Maximum income:
(not set)
Status:
Expired

Property description

Let op:Er geldt een speciale selectieprocedure voor deze woningen.Wonen in Startblok ElzenhagenWil jij wonen in een levendige en sociale community in Amsterdam Noord? Dan is Startblok Elzenhagen iets voor jou! Hier wonen Nederlandse jongeren samen met jonge statushouders (vluchtelingen met een verblijfsvergunning), jonge leraren en zorgmedewerkers.Startblok Elzenhagen ligt vlak bij de halte van de Noord/Zuidlijn. In deze community doe je meer dan alleen wonen: je zet je samen met je buren in voor een prettige en actieve woonomgeving.Bewoners organiseren zelf allerlei activiteiten, houden het terrein netjes en werken samen aan een goede start in Amsterdam. Sommige bewoners zijn actief als community builder of gangmaker. Voor sommige taken kun je een vergoeding krijgen.Lijkt het je leuk om actief bij te dragen aan een fijne woonplek? Dan is dit project iets voor jou!Bijzonderheden huurovereenkomstDeze woningen worden verhuurd met een jongerencontract voor tijdelijke flexwoningen. Dit betekent het volgende:De studio’s zijn gebouwd met een tijdelijke vergunning, geldigtot 7 maart 2028Je sluit een tijdelijk huurcontract af (maximaal 5 jaar)Je blijft jewachtpuntenbehoudenen je blijft jepunten opbouwentijdens je huurperiode bij Startblok ElzenhagenJe moet de woningvóór of uiterlijk op 7 maart 2028ontruimenEr vinden gesprekken plaats over eeneventuele verlengingvan dit project.Geen recht op vervangende woonruimteof verhuisvergoeding bij einde contractJe kunt het contractzelf opzeggenmet 1 maand opzegtermijnArtikel 7:274 lid 1 sub g van het Burgerlijk Wetboek is van toepassingBelangrijk: Als je op de startdatum van het huurcontract28 jaar of ouder bent, kunnen we jegeen woning aanbiedenSelectieprocedure & bezichtigingLet op:bewoners worden geselecteerdop motivatie, niet op inschrijfpositieDe eerstvolgende selectiemiddag vindt plaats opdinsdag 14 Oktober 2025 om 15:30 uur. Deze datum is onder voorbehoud.Aanwezigheid bijde selectiedagisverplichtom in aanmerking te komenDe selectie vindt plaats opJ.H. Hisgenpad 572en duurt ongeveer een uurNa het sluiten van de advertentie ontvangen geselecteerde kandidaten een uitnodigingOver de studio’sZelfstandige studio’s van 20m² en 25 m²Eigen keuken, douche en toiletElke gang heeft een gezamenlijke woonkamerGeschikt voor1 persoonHuisdieren zijn niet toegestaanTechnische informatie & voorzieningenVerwarming/koelingvia warmtepomp en bodemwarmteWarmwater via boiler (voldoende voor ±30 minuten douchen)Jaarlijkse afrekeningvan het maandelijkse voorschotVloerafwerking (marmoleum)Dus je hoeft zelf geen vloer te leggenWanden zijn wit gesaustGordijnen en verlichtingaanwezig in woonkamer en badkamerGeen aansluiting voor kabel-tv of vaste telefoonInternet isinbegrepenin de servicekosten. Je hoeft alleen zelf een router aan te schaffen voor WiFi.Rokenis alleen toegestaan in de woning of buitenParkeren en afvalEr zijngeen parkeerplekken op het terreinBetaald parkerenin de omgevingGemeente geeftgeen parkeervergunningenaf voor deze woningenWil jij actief bijdragen aan een fijne en betrokken community in Amsterdam? Reageer dan snel!Meer info over het project vind je op:www.startblokelzenhagen.nl

Map