Rental property Amsterdam

Entrepotbrug 162, Amsterdam

Quick summary

Location
Amsterdam
Rental price
€951.62
Property type
Portiekwoning
Area:
49 m2
Rooms:
2
Beds:
1
Waiting time:
(not set)
Date available:
May 6, 2025
Maximum income:
(not set)
Status:
Expired

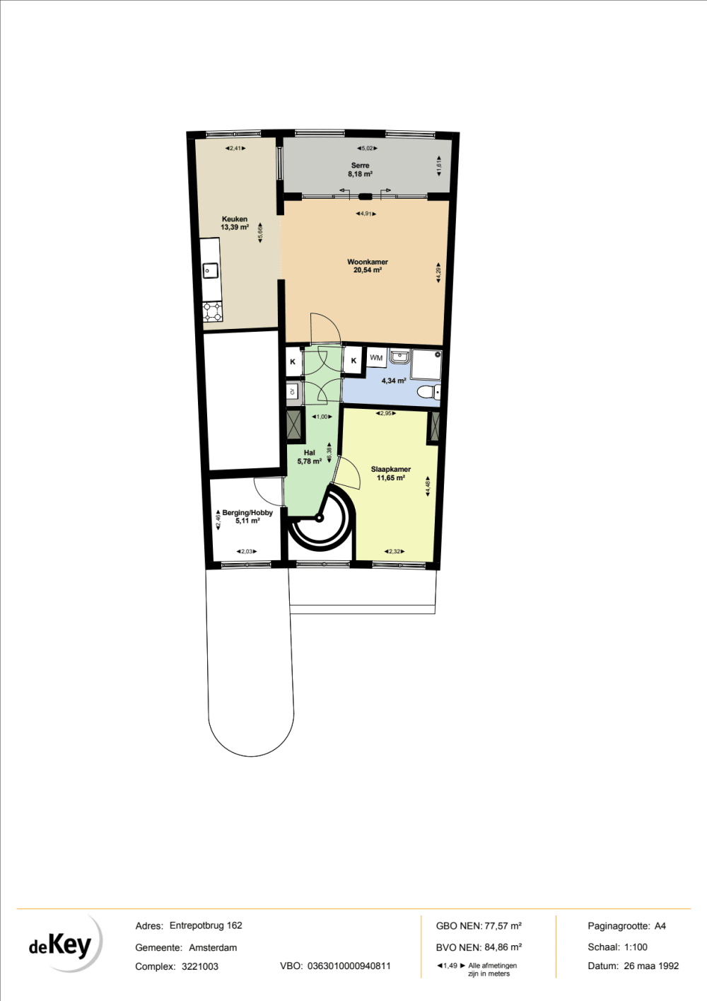
Property description

Let op! Plattegrond kan afwijken van de werkelijkheid.Let op! Voor deze woning kan geen huurtoeslag worden aangevraagdLet op: bij deze woning krijg je een huurcontract voor onbepaalde tijd. Daardoor vervallen bij acceptatie jouw wachtpunten, eventuele startpunten, zoekpunten, situatiepunten en kom je niet (opnieuw) in aanmerking voor startpunten. Meer weten? Kijk opwww.socialehuurwoningzoeken.nl.Let op! Voor een jongerencontract mag je niet ouder zijn dan 27 jaar.Beschrijving woningTweekamerwoning gelegen in het Oostelijk Haven gebied op de vierde etageKenmerken woning:•    energielabel B•    bereikbaar met lift•    half open keuken•    elektrisch koken met perilex aansluiting (2 fase)•    aansluiting wasmachine in de badkamer•    individuele cv combi-ketel•    toilet in badkamer•    dubbele beglazing•    gehorige woning•    balkon•    kleine berging in de woningDe overige kenmerken van de woning zijn helemaal onderaan te vinden.In de buurt:•    winkels•    voorzieningen•    openbaar vervoer•    scholenAfval en parkeren:Benieuwd waar u huisafval kan laten?Klikhiervoor meer informatie over huisvuil in AmsterdamKlikhiervoor meer informatie over huisvuil in Diemen.Benieuwd of er een parkeermogelijkheid is bij deze woning? Let op: bij sommige woningen is een parkeervergunning niet toegestaan.Klikhiervoor meer informatie over parkeervergunningen in de gemeente AmsterdamKlikhiervoor meer informatie over parkeervergunningen in de gemeente DiemenTechnische staat van onze woningenWe leveren de woning volgens de Lieven de Key standaard op. Houd er rekening mee dat u zelf nog wat aan de woning moet doen. Denk hierbij bijvoorbeeld aan behangen en schilderen en het leggen van een vloer. Kijkhiervoor de kwaliteitseisen van Lieven de Key en hoe wij een woning opleveren.WaarborgsomLieven de Key brengt een waarborgsom ter hoogte van €808 in rekening. Deze waarborgsom betaalt u samen met de eerste huur vóór ondertekening van de huurovereenkomst.Verzamel alvast uw gegevensWordt u uitgenodigd voor de bezichtiging? Verzamel dan alvast uw gegevens. Wacht niet totdat u de eerste kandidaat bent. Deze documenten moet u straks aanleveren:1.Verklaring kandidaat(verplicht document)2.Inkomensverklaringvan de belastingdienst (verplicht document)3.Verhuurdersverklaring: woont u nog thuis? Dan hoeft u dit document niet aan te leveren4.Uittreksel Basisregistratie Personen (BRP)waar de huwelijkse staat, historische adressen en aantal persoenen in het huishouden op staat van de gemeente waar u nu woont: woont u in Amsterdam? Dan hoef u dit document niet aan te leverenKijk voor meer informatie over deze documenten op onze website:https://lievendekey.nl/socialehuurwoningBeschikbaarheid:Dit is de datum waarop wij verwachten dat de huurovereenkomst ondertekend kan worden. Let op: aan vermelding van deze datum kunnen geen rechten worden ontleend, deze datum kan nog veranderen.

Map