Rental property Amsterdam

Erasmusgracht 61, Amsterdam

Quick summary

Location
Amsterdam
Rental price
€654.41
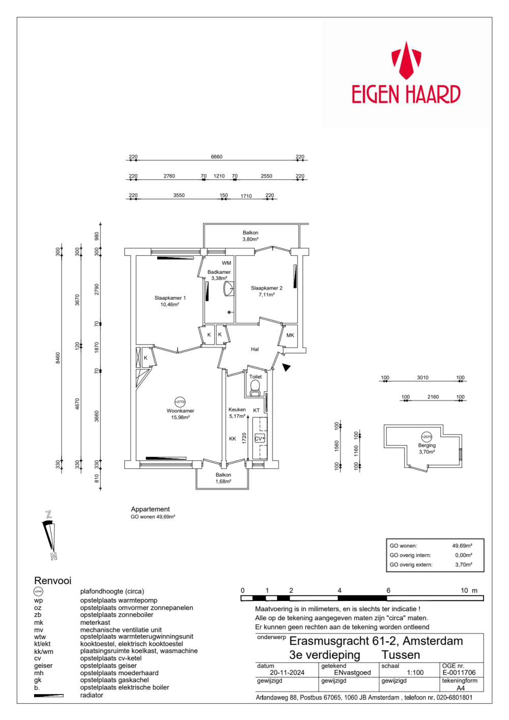
Property type
Portiekwoning
Area:
43 m2
Rooms:
3
Beds:
2
Waiting time:
(not set)
Date available:
Jan 15, 2025
Maximum income:
€39.055.00
Status:
Expired

Property description

BijzonderhedenComplex gelegen vlakbij de snelwegWoning gelegen tegenover het waterBetaald parkeren/ met vergunning: zie voor meer informatie website gemeente AmsterdamDe woningWoning gelegen op 3e etageGeen liftToegang tot het balkon alleen via de slaapkamer2 slaapkamersKleine gesloten keukenZeer kleine smalle douche ruimteWasmachine aansluiting in kleine, smalle doucheruimteGehorige woningBerging benedenBuurtNabij Bos en LommerpleinSportscholenSupermarktenHoreca gelegenheidNabij openbaar vervoerLet op:woningkenmerken, plattegrond en huurprijs zijn nog onder voorbehoud. Klik hier voor meer informatie:https://www.woningnetregioamsterdam.nl/Nieuws/Huurprijzen%20onder%20voorbehoud%20bij%20Eigen%20HaardTechnische staatWe leveren de woning volgens de Eigen Haard standaard op.  Voor meer informatie kijkt u op onze site:https://www.eigenhaard.nl/weten-en-regelen/sociale-huur/nieuwe-huurders/oplevering#F4BBB11819D44A4184749E7F8DD30BD7Houd er rekening mee dat u zelf ook nog het een en ander moet doen om de woning naar uw smaak te maken. Denk aan schilderen van de muren en plafonds, afstomen van behang en/ of het leggen van een vloer.Wilt u de woning huren?Voor meer informatie over welke documenten u nog meer moet inleveren op het moment dat u eerste kandidaat wordt voor de woning, kijkt u op onze website:https://www.eigenhaard.nl/weten-en-regelen/sociale-huur/nieuwe-huurders/acceptatie-en-toewijzingInkomensverklaringControleert u voordat u gaat reageren op deze woning, of uw recente inkomen staat genoteerd in Woningnet. Dit voorkomt teleurstellingen.

Map