Rental property Amsterdam

Hoofdweg 264, Amsterdam

Quick summary

Location
Amsterdam
Rental price
€698.89
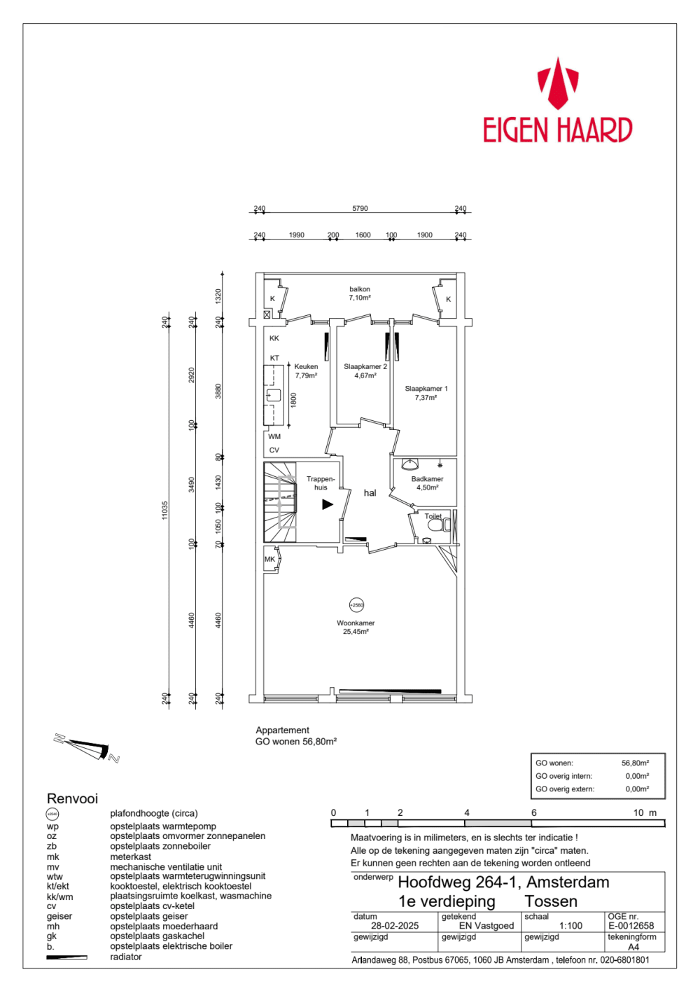
Property type
Portiekwoning
Area:
50 m2
Rooms:
3
Beds:
2
Waiting time:
(not set)
Date available:
Mar 25, 2025
Maximum income:
€39.055.00
Status:
Expired

Property description

Bijzonderheden*Let op: Gehorige woning.De woningWoonkamer met aparte keuken2 slaapkamersWasmachine aansluiting in de badkamerBalkonDe woning bevindt zicht op de 1e verdiepingHet complex of deel van het complex is gelegen in een Vereniging van Eigenaren (VvE)Geen lift aanwezigIn de buurtOpenbaar vervoer op loopafstandHorecaSportscholen en supermarkten op loopafstandLet op:woningkenmerken, energielabel, plattegrond en huurprijs zijn nog onder voorbehoud. Klikhiervoor meer informatie.Technische staatWe leveren de woning volgens de Eigen Haard standaard op.  Voor meer informatie kijkt u op onzesite.Houd er rekening mee dat u zelf ook nog het een en ander moet doen om de woning naar uw smaak te maken. Denk aan schilderen van de muren en plafonds, afstomen van behang en/ of het leggen van een vloer.Wilt u de woning huren?Voor meer informatie over welke documenten u nog meer moet inleveren op het moment dat u eerste kandidaat wordt voor de woning, kijkt u op onzewebsiteParkeren/ vergunningRondom de woning geldt betaald parkeren. Wij verwijzen u naar de gemeente voor informatie hierover. Optioneel is het mogelijk om in de omgeving een parkeerplaats te huren. Bekijk ons aanbod op dewebsitevan Eigen Haard.

Map