Rental property Amsterdam

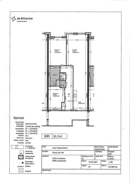
Julius Pergerstraat 8, Amsterdam

Quick summary

Location
Amsterdam
Rental price
€647.19
Property type
Portiekwoning
Area:
67 m2
Rooms:
3
Beds:
2
Waiting time:
(not set)
Date available:
May 24, 2023
Maximum income:
€39.055.00
Status:
Expired

Property description

Advertentietekst Beschikbaar: 3-kamerwoning op de tweede verdieping op IJburg- Amsterdam Oost De huur is exclusief huuraanpassing van de servicekosten per 1 juli 2023. Woning: Toilet in de gang Open keuken Twee slaapkamers Bergruimte in de woning en in de algemene ruimte Wasmachine aansluiting in de berging Ruimte voor koelkast en fornuis Geen vaatwasser-aansluiting Elektrisch koken Mechanische ventilatie in de badkamer Staande douche Kleur tegels wit Gallerij-balkon Ligging balkon zuid-oost Stadsverwarming Dubbel/HR++ glas Oplaadpunt scootmobiel in gemeenschappelijke ruimte Lift aanwezig Elektrische buitendeur aanwezig Garage aanwezig. Indien plaats beschikbaar geen parkeervergunning voor op straat. Plekken zijn te huur. De prijzen liggen tussen de 75 en 100 euro per maand Ligging woning aan een kleine weg met tram Laminaatvloer blijft liggen, kosteloos ter overname Zeil in de keuken, kosteloos ter overname Standaard parkeerbeleid IJburg Woonomgeving: Woning op de vierde verdieping Winkels, caf s en restaurants in de directe omgeving Betaald parkeren in de omgeving Openbaar vervoer bereikbaar op loopafstand Zie ook tabblad Buurt Opleverstatus: Wij leveren de woning volgens Alliantie- standaard op Houd er rekening mee dat u zelf nog wat aan de woning moet doen, denk aan schilderen van de muren en plafonds en het leggen van een vloer Voorwaarden: Inkomensverklaring verplicht Een verklaring geregistreerd inkomen van de Belastingdienst van u en alle meeverhuizende personen (behalve kinderen) is verplicht. Deze moet van het voorgaande jaar zijn, of als deze nog niet beschikbaar is, van het jaar daarvoor. Vraag uw inkomensverklaring direct aan door in te loggen op Mijn Belastingdienst of via de Belastingtelefoon (0800-0543). De corporatie controleert uw inkomen bij de toewijzing en wil uw inkomensverklaring(en) altijd ontvangen, ook als er geen bedrag op staat. Zorg ervoor dat het inkomen in uw inschrijving klopt. Anders loopt u het risico dat de corporatie u afwijst als u eerste kandidaat wordt.

Map