Rental property Amsterdam

Karlskrona-eiland 124, Amsterdam

Quick summary

Location
Amsterdam
Rental price
€984.19
Property type
Appartement
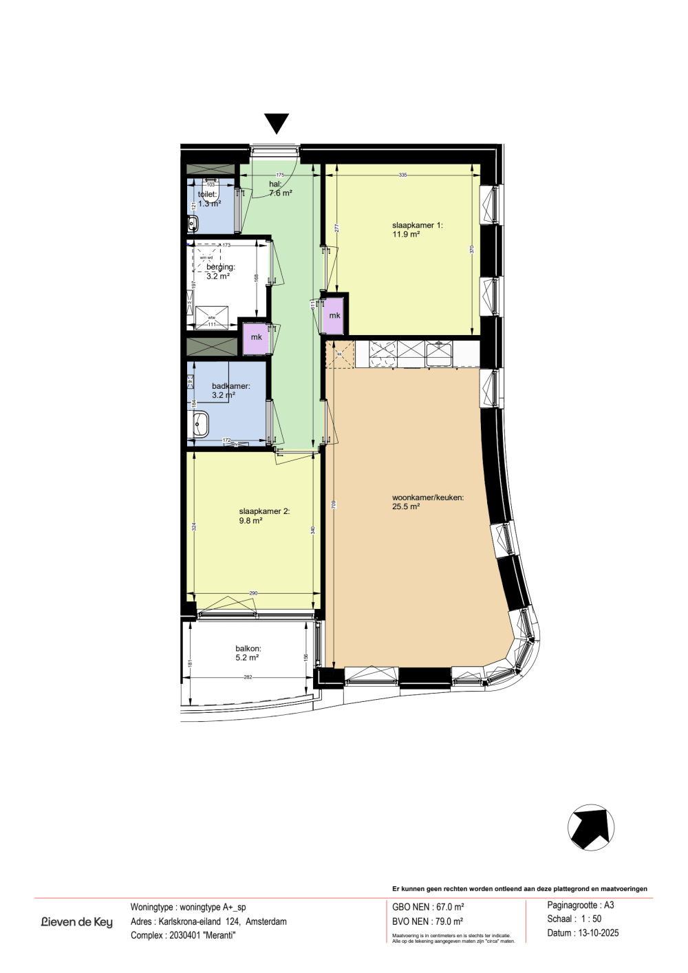
Area:
50 m2
Rooms:
3
Beds:
2
Waiting time:
(not set)
Date available:
May 1, 2026
Maximum income:
(not set)
Status:
Published
Respond

Property description

Woning:Er worden geen parkeervergunningen afgegeven!De woning heeft een eigen buitenruimte. Namelijk een balkon.Zelfstandige woning met keuken, badkamer en zelfstandig toilet.Er wordt gasloos gekookt, er is een afzuigkap aanwezig. U dient zelf een elektrische kookplaat aan te schaffen. Er is verder geen andere keukenapparatuur aanwezig. Het gaat hierbij om een 2-fase aansluiting met Periliex aansluiting.De woning wordt verwarmd door vloerverwarming en zomers gekoeld via een zogenaamde warmte koudeopslag (hiervoor sluit u een verplicht contract af met leverancier Vattenfall, dit wordt later in het verhuurproces toegelicht). Let op, de kosten hiervan zijn hoog, zie kopje kosten hieronder.De wanden zijn kaal en dienen nog voorgestreken te worden voordat je kan verven. De vloer brengt u zelf aan. Een ondervloer die geluiddempend is, is daarbij verplicht.Er is een slimme meter aanwezig in de woning.Er is een videofoon aanwezig in de woning.In de keuken is een aansluiting voor een vaatwasser aanwezig. In de technische ruimte is plek en een aansluiting voor een wasmachine en plek voor een droger.Plattegrond kan afwijken van de werkelijkheid.Wonen in de Houthaven: uniek en bereikbaarDe Houthaven is een unieke veelzijdige buurt op een toplocatie in Amsterdam. Ieder eiland heeft zijn eigen karakter, omringd door water en vlak bij het centrum. Met de fiets of OV bent u binnen 15 minuten in het centrum en met de pont zo op het NDSM-terrein. Met onze sociale huurwoningen zorgen we dat in de Houthaven plek is voor iedereen. De kwalitatieve woningen die wij maken doen niet onder voor de omringende koop- en vrijesectorwoningen. Meranti is het sluitstuk van deze bijzondere buurt: een roodgewelfd gebouw in Amsterdamse School-stijl, met een groene binnentuin en uitzicht op het IJ. Dit is een plek waar iedereen zich thuis voelt.ParkerenIeder huishouden binnen Meranti kan gebruikmaken van de gemeenschappelijke fietsenstalling. Huurders van Meranti kunnengeenparkeervergunning aanvragen bij de Gemeente Amsterdam. Alle plekken in de inpandige parkeergarage zijn verhuurd, als er een plek vrijkomt wordt deze met voorrang aan bewoners van Meranti aangeboden.Bijkomende kosten:De eenmalige administratiekosten zijn €16,50.Energiekosten van ongeveer €200 per maand via Vattenfall (warm water en verwarming/verkoeling woning).Internet en TV sluit u zelf af.Elektra sluit u zelf af bij een leverancier naar keuze.Koud water sluit u zelf af bij Waternet.Optioneel: lidmaatschap huurdersvereniging Arcade á €0,60 per maand.Onderhoudsabonnement is de eerste 6 maanden inbegrepen, daarna is dit optioneel en €7,07 per maand.Kijk op toeslagen.nl of u in aanmerking komt voor huurtoeslag.WaarborgsomLieven de Key brengt een waarborgsom ter hoogte van €808 in rekening. Deze waarborgsom betaalt u samen met de eerste huur vóór ondertekening van de huurovereenkomst.Verzamel alvast uw gegevensWordt u uitgenodigd voor de bezichtiging? Verzamel dan alvast uw gegevens. Wacht niet totdat u de eerste kandidaat bent. Deze documenten moet u straks aanleveren:Verklaring kandidaat(verplicht document)Inkomensverklaring van de belastingdienst(verplicht document)Uittreksel Basisregistratie Personen (BRP)waar de huwelijkse staat, historische adressen en aantal persoenen in het huishouden op staat van de gemeente waar u nu woont: woont u in Amsterdam? Dan hoef u dit document niet aan te leveren.Verhuurdersverklaring:woont u nog thuis? Dan hoeft u dit document niet aan te leveren. U krijgt een link om de verhuurdersverklaring aan te vragen wanneer u eerste kandidaat bent. U hoeft dit document dus niet van te voren te verzamelen.Kijk voor meer informatie over deze documenten op onze website:https://lievendekey.nl/socialehuurwoningBeschikbaar per 11 mei:Dit is de datum waarop wij verwachten dat de huurovereenkomst ondertekend kan worden. Let op: aan vermelding van deze datum kunnen geen rechten worden ontleend, deze datum kan nog veranderen.De advertentie is gewijzigd op 17-04-2026 10:31:31.

Map