Rental property Amsterdam

Kleine Wittenburgerstraat 357, Amsterdam

Quick summary

Location
Amsterdam
Rental price
€756.93
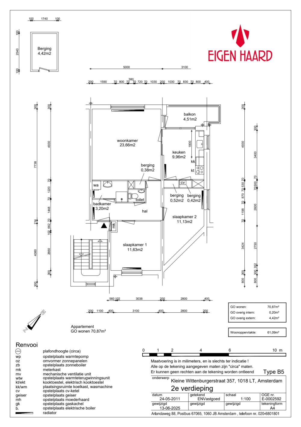
Property type
Benedenwoning
Area:
49 m2
Rooms:
3
Beds:
2
Waiting time:
(not set)
Date available:
Aug 22, 2025
Maximum income:
(not set)
Status:
Expired

Property description

BijzonderhedenParkeren/ met vergunning: voor meer informatie over wachttijden kijkt u op de website van de gemeente AmsterdamDe woningWoning ligt op de tweede verdiepingGeen lift aanwezig3 kamerwoningKoken op gas2 SlaapkamersWoonkamerGesloten keuken met doorkijk glasSmalle badkamer van 4 m2Wasmachine aansluiting in de badkamerBalkonBuurt10 minuten fietsen naar centraal station5 minuten lopen naar de Albert HeinArtis op 10 minuten fietsenDiverse (afhaal) restaurants in de omgevingLet op:woningkenmerken, plattegrond en huurprijs zijn nog onder voorbehoud. Klik hier voor meer informatie:https://www.woningnetregioamsterdam.nl/Nieuws/Huurprijzen%20onder%20voorbehoud%20bij%20Eigen%20HaardTechnische staatWe leveren de woning volgens de Eigen Haard standaard op.  Voor meer informatie kijkt u op onze site:https://www.eigenhaard.nl/weten-en-regelen/sociale-huur/nieuwe-huurders/oplevering#F4BBB11819D44A4184749E7F8DD30BD7Houd er rekening mee dat u zelf ook nog het een en ander moet doen om de woning naar uw smaak te maken. Denk aan schilderen van de muren en plafonds, afstomen van behang en/ of het leggen van een vloer.Wilt u de woning huren?Voor meer informatie over welke documenten u nog meer moet inleveren op het moment dat u eerste kandidaat wordt voor de woning, kijkt u op onze website:https://www.eigenhaard.nl/weten-en-regelen/sociale-huur/nieuwe-huurders/acceptatie-en-toewijzingParkeren/ met vergunning:Parkeren kan voldoende in de buurt met een vergunning, mits er een vergunning wordt toegekend. Wij verwijzen u naar de gemeente voor informatie hierover.

Map