Rental property Amsterdam

Klinkerweg 111, Amsterdam

Quick summary

Location
Amsterdam
Rental price
€965.00
Property type
Portiekwoning
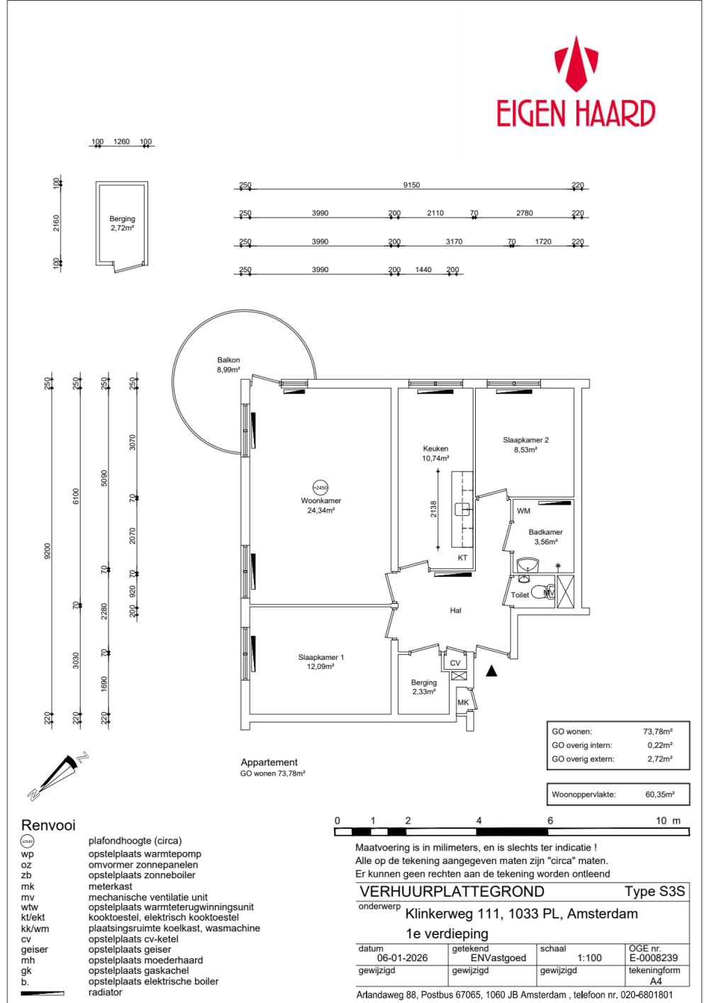
Area:
59 m2
Rooms:
3
Beds:
2
Waiting time:
(not set)
Date available:
Feb 16, 2026
Maximum income:
(not set)
Status:
Published
Respond

Property description

3-kamer woning met twee slaapkamers in Amsterdam-NoordWoningEtagewoning2 slaapkamersSeparaat toiletWasmachine aansluiting in de badkamerExterne bergingKoken op gasIn de buurtBushalte op 4 minuten loopafstand, en met 20 minuten bij de NDSM pont met de bus.Meerdere restaurants, cafés, en terrassen bij NDSMEen supermarkt op 11 minuten loopafstandNoorderpark in de nabije omgevingA10 op 7 minuten rijafstandMeerdere basisscholen in de omgevingParkerenRondom de woning geldt betaald parkeren. Voor meer informatie verwijzen we je naar degemeente. Het is mogelijk om in de omgeving een parkeerplaats te huren. Er kunnen wachtlijsten zijn. Bekijk onsparkeeraanbod.ToewijzingEigen Haard verhuurt huurwoningen in het middensegment op basis van het actuele inkomen (inkomen op dit moment). Zorg er daarom voor dat je actuele inkomen staat ingevuld in je profiel vóórdat je reageert op de woning. Laat dit bedrag vervolgens in je profiel staan totdat de selectie van de woning is geweest. Doe je dit niet? Dan kan het zijn dat wij je bij de gegevenscontrole moeten afwijzen voor de woning. Bekijk hier hoe je het actuelegezamenlijk jaarinkomenbepaald.Het actuele inkomen van jou en je eventuele medeaanvrager tellen beide voor 100% mee.Als je zelfstandig ondernemer (zzp'er) bent, dan moet je minimaal 2 jaar werkzaam zijn als zelfstandig ondernemer voor de huidige onderneming. Ben je niet minimaal 2 jaar werkzaam als zelfstandig ondernemer, dan kom je niet in aanmerking voor de woning.Eigen Haard wil graag passend verhuren,kijkwat dat voor jou betekent.Doorstromers krijgen voorrang bij Eigen Haard. Bij Eigen Haard is een doorstromer iemand die een zelfstandige sociale huurwoning van een corporatie leeg achterlaat binnen stadsregio Amsterdam.Hierleggen we je uit wat het verschil is tussen een doorstromer en een instromer.Huur je van Eigen Haard een sociale huurwoning en laat je die leeg achter? Je krijgt dan voorrang op andere doorstromers en er geldt voor jou geen maximale inkomenseis, wel de minimale inkomenseis.

Map