Rental property Amsterdam

Kortvoort 105, Amsterdam

Quick summary

Location
Amsterdam
Rental price
€920.03
Property type
Appartement
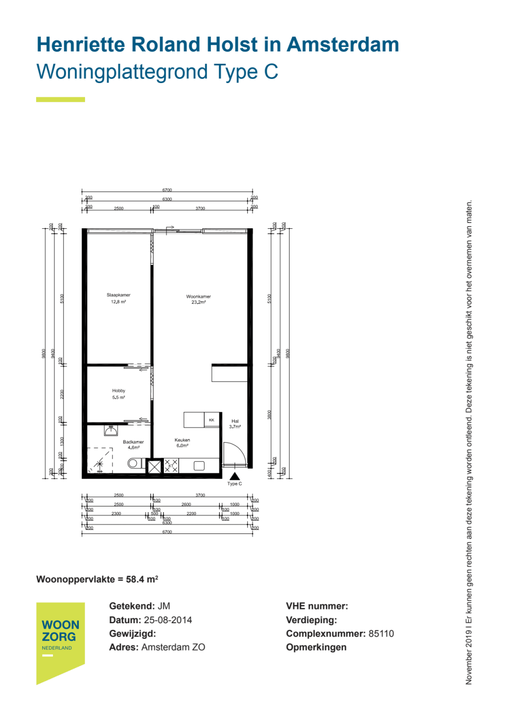
Area:
57 m2
Rooms:
2
Beds:
1
Waiting time:
(not set)
Date available:
Feb 24, 2025
Maximum income:
(not set)
Status:
Expired

Property description

Tweekamerwoning op de begane grond in het Henriette Roland HolsthuisWoningWoonkamerOpen keuken met een keramische kookplaat en afzuigkap1 slaapkamerBadkamer met toilet en wasmachineaansluitingBalkon gelegen op het noordHobbyruimteGeen bergingLiftBijzonderhedenInwonende kinderen / familieleden zijn niet toegestaanU heeft een maximale bruto jaarinkomen van € 47.699,-Motivatiegesprek is onderdeel van het verhuurproces om te kunnen gaan hurenStaat van de woningWat moet u aan de woning doen?Schilderen en/of behangwerkzaamhedenVloer leggen met een ondervloer van minimaal 10dbDe oplevering van de woning kan mogelijk afwijken van de advertentietekst, de plattegrond en de foto’s tijdens de bezichtiging in verband met eventuele werkzaamheden.In de buurtOpenbaar vervoer, bus 41 / 47 en metrolijn 53Basisschool aan de overkant van het complexSupermarkten, winkels, bakker en slager in het winkelcentrum KraaiennestHuisartsenpraktijk en apotheek bij station KraaiennestParkeren op eigen terrein WoonzorgUitvalswegenKapper, een klein winkeltje en een restaurant in het complexVerzamel alvast uw documentenVerzamel alvast om het proces te versnellen onderstaande documenten voor Woonzorg als u op de woning heeft gereageerd. Ook als u niet de eerste kandidaat bent!Historische uittreksel van de gemeente voor woningcorporatiesInkomensverklaring belastingdienst 2023/2024 of een definitieve aanslag 2023/2024Verklaring kandidaat deel 1 en de Verhuurdersverklaring deel 2BezichtigingKandidatennummer 1 t/m 15 worden uitgenodigd voor een bezichtiging. Meld u zich bij de bezichtiging eerst bij de bewonersconsulent om uw aanwezigheid te registreren. Meldt u zich niet, dan wordt u op afwezig gezet wat effect heeft op uw zoekpunten.Bent u na de bezichtiging de nummer 1 kandidaat voor deze woning? Dan zullen wij na ontvangst van uw documenten aansluitend een afspraak inplannen voor een motivatiegesprek met de bewonersconsulent om u beter te leren kennen. Het motivatiegesprek is onderdeel van de toewijzing. Bij een positieve uitslag zullen wij de woning definitief aan u toewijzen. Bij afwijzing zullen wij doorgaan met de volgende kandidaten.

Map