Rental property Amsterdam

Krijtmolenpad 205, Amsterdam

Quick summary

Location
Amsterdam
Rental price
€819.18
Property type
Maisonnette
Area:
72 m2
Rooms:
5
Beds:
4
Waiting time:
(not set)
Date available:
Apr 3, 2026
Maximum income:
(not set)
Status:
Published
Respond

Property description

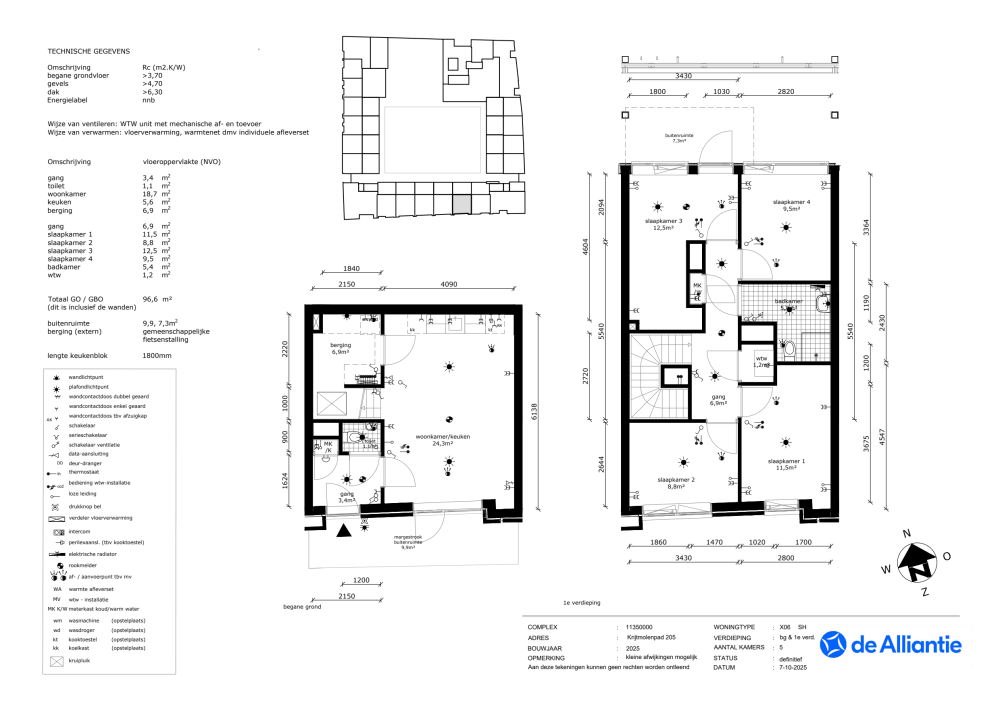
Locatie & omgevingVlakbij station Noord in Amsterdam komt een hele nieuwe wijk: Elzenhagen Zuid. De Alliantie bouwt in deze wijk 211 nieuwe woningen. Het woongebouw (blok NZ3) ligt straks in een afwisselende, rustige buurt met veel water en groen en krijgt een gemeenschappelijke binnentuin. Het vroegere sportgebied vlakbij metrostation Amsterdam Noord verandert de komende jaren in de stadswijkElzenhagen Zuid. In deze nieuwe wijk bouwen wij Elzenhagen NZ3: een woongebouw met 211 nieuwe woningen. Het gebouw krijgt een toren van 13 verdiepingen en een gemeenschappelijke binnentuin. Naast appartementen en studio’s komen er 5 woningen voor rolstoelgebruikers.Dicht bij winkels, OV en parkVanuit de gloednieuwe wijk is alles dichtbij. Je bent met een paar minuten in hetNoorderparkof op het levendige Buikslotermeerplein. Op dit plein vind je winkelcentrumBoven ‘t Ymet ruim 140 winkels. Elzenhagen Zuid ligt verder direct naast metrostation Noord. Via de Noord-Zuidlijn sta je met een paar minuten in het centrum van Amsterdam.WoningenIn het woongebouw komen 127 sociale huurwoningen. Het gaat om de volgende type woningen:2-kamerappartementen3-kamerappartementen4-kamerappartementen5-kamerappartementen5-kamer rolstoelwoningen & studio'sWe verhuren 127 van deze woningen in het sociale segment en 84 in het middensegment. De huurprijzen van de sociale huurwoningen zijn tussen de€ 713,02 en € 932,93 per maand. De servicekosten van ongeveer € 60,- per maand. De woningen worden kaal opgeleverd. U moet zelf een vloer leggen. De muren worden behangklaar opgeleverd.Duurzaam wonenDe woningen worden aangesloten op het stadswarmtenet en krijgen vloerverwarming. Een deel van de woningen worden aangesloten op zonnepanelen.Elektrisch kokenEr is geen gas meer in huis. U kookt dus elektrisch. In de keuken zit een Perilex-aansluiting voor een elektrisch kooktoestel. Dit is een aparte (2-fase) aansluiting.Elektriciteit, warmte en waternet zitten niet in de servicekosten inbegrepen. Deze woningen worden verwarmd door middel van stadsverwarming. Hiervoor neem je contact op met een warmteleverancier. Ditzelfde geldt voor elektriciteit & water.Informatie over de verhuurDe woningen worden verhuurd op basis van een plattegrond, impressiefoto’s. Een inmeetdag is in verband met de veiligheid op het bouwterrein, niet mogelijk. Aan de plattegrond en de impressiefoto's kunnen geen rechten worden ontleend.ParkerenEr komt een klein aantal parkeerplaatsen bij de woningen: 14 in totaal. Dit past bij het beleid van de gemeente Amsterdam voor minder auto’s in de stad. Hierdoor is er meer ruimte voor voetgangers, fietsers en groen.In het project NZ3 zijn weinig parkeerplaatsen aanwezig: 14 in totaal. De beschikbare parkeerplaatsen zijn bedoeld voor bewoners die afhankelijk zijn van een auto. Bijvoorbeeld door werk op tijden waarop het openbaar vervoer niet rijdt (zoals ’s nachts). Binnen deze doelgroep krijgt degene de parkeerplaats toegewezen die het eerste de aanvraag doet. Dit past bij het beleid van de gemeente Amsterdam voor minder auto’s in de stad. Hierdoor is er meer ruimte voor voetgangers, fietsers en groen. De metrohalte ligt direct naast de woningen.Vanuit het duurzaamheidsbeleid van de gemeente Amsterdam worden veel nieuwbouwprojecten gerealiseerd zonder of met heel weinig parkeerplaatsen. Dit stimuleert het gebruik van openbaar vervoer en de fiets. En het helpt het autogebruik en de bijbehorende luchtvervuiling te beperken.Tegelijkertijd begrijpen wij dat sommige bewoners de auto echt nodig hebben voor hun werk. Daarom is er een beperkt aantal parkeerplaatsen beschikbaar voor deze doelgroep.PlanningDe woningen worden opgeleverd in september 2026. In de maanden ervoor adverteren we de sociale huurwoningen viaDAK Amsterdamen de middensegment woningen viaIk zoek.Meer informatie over dit nieuwbouwproject vind je op onzeElzenhagen NZ3 in Amsterdam | de Alliantie. U kunt ook mailen naarnz3@de-alliantie.nlDisclaimer: onder voorbehoud van wijzigingen. Aan deze informatie kunnen geen rechten worden ontleend.

Map