Rental property Amsterdam

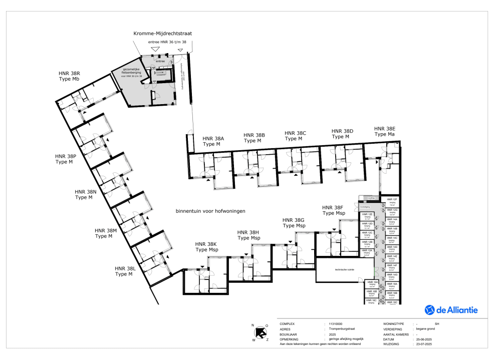
Kromme Mijdrechtstraat 38N, Amsterdam

Quick summary

Location
Amsterdam
Rental price
€747.03
Property type
Benedenwoning
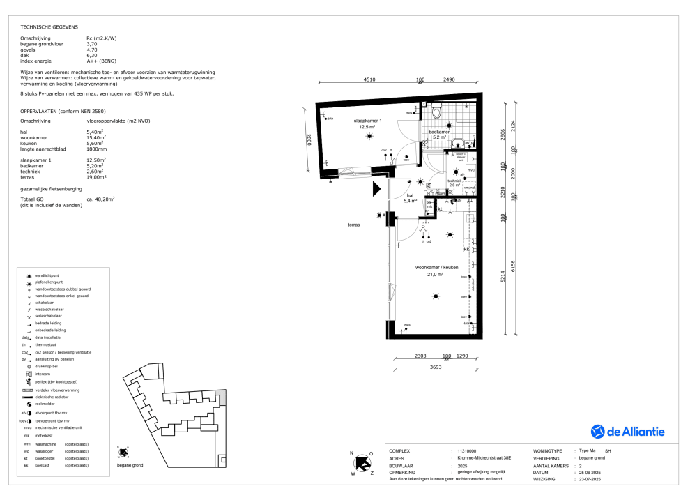
Area:
39 m2
Rooms:
2
Beds:
1
Waiting time:
(not set)
Date available:
Sep 17, 2025
Maximum income:
(not set)
Status:
Expired

Property description

Nieuwbouw project Trommij - Hofwoningen begane grond (Senioren)De grondgebonden hofwoningen horen bij het nieuwbouwproject Trommij. Er komen 14 hofwoningen met een gezamenlijke groene binnentuin. De tuin is bedoeld om elkaar te ontmoeten en samen te leven, speciaal voor senioren. Het seniorenlabel geldt hier; inwonende kinderen zijn niet toegestaan.De woningen worden naar verwachting begin december 2025 opgeleverd. Ze liggen in de Rivierenbuurt, met tram en bus op loopafstand.WoningenAan de Kromme Mijdrechtstraat bouwen we moderne, duurzame hofwoningen voor senioren. Deze woningen hebben een seniorenlabel. Zo blijft het rustig en blijft de seniorenbestemming behouden.Elke woning heeft een eigen terras waar u een scootmobiel kunt parkeren en opladen. Het terras grenst aan de gezamenlijke binnentuin met zitjes om elkaar te ontmoeten. De binnentuin is veilig afgesloten van de straat en biedt ruimte om te tuinieren. De hofwoningen hebben een groen dak met zonnepanelen.Wonen in een hofwoning bij TrommijU woont in een modern complex met aandacht voor ouderen, groen en ontmoeting. De binnentuin is alleen voor bewoners van de hofwoningen. Appartementbewoners mogen er geen gebruik van maken.De woningen zijn alleen voor één- of tweepersoonshuishoudens. Minimaal één bewoner moet 55 jaar of ouder zijn.Kinderen mogen niet inwonen, langdurig logeren of worden ingeschreven in de BRP.U deelt de gezamenlijke ingang en fietsenstalling met de andere bewoners van de appartementen van de Kromme Mijdrechtstraat.De andere woningen in Trommij hebben geen seniorenlabel. Sommige woningen worden met voorrang aan ouderen verhuurd. U woont dus in een gemengd project.Huurprijzen en servicekostenHuur: € 682,96 – € 900,07 (prijspeil 2025)Servicekosten: circa € 65,- (prijspeil 2025)Parkeren en bergingFietsenstalling op de begane grond voor bewonersScootmobiel parkeren en opladen bij de eigen woningGeen parkeerplaatsen bij het projectGeen parkeervergunning via de gemeente mogelijkGeen aparte invalidenparkeerplaatsen bij het project (via gemeente aanvragen)Duurzaam wonenDe woningen zijn energiezuinig en volledig gasloos. Ze zijn uitgerust met:een bodemwarmtepompzonnepanelenelektrisch koken (perilex-aansluiting, tweefase stekker nodig)een Energielabel A++ (BENG: Bijna EnergieNeutraal Gebouw)u kiest zelf uw elektriciteitsleverancier.Goed om te weten verplichte aansluiting EteckVerwarming, koeling en warm water worden geleverd via Eteck. U sluit een verplichte leveringsovereenkomst af met Eteck. In 2025 bedragen de vaste kosten hiervoor € 78,28 per maand, exclusief verbruik. Voor water bent u aangesloten bij Waternet en betaalt u de waterkosten rechtstreeks aan Waternet.Bekijken van de woningBij dit nieuwbouwproject is geen fysieke bezichtiging mogelijk. U accepteert de woning op basis van de advertentietekst, plattegronden en voorbeeldfoto’s. De digitale bezichtiging via WoningNet betekent dus: wel of niet accepteren op basis van deze informatie. Houd er rekening mee dat de woningen kunnen afwijken en dat aan plattegronden en foto’s geen rechten kunnen worden ontleend.Nieuwbouwproject Trommij - Trompenburgstraat en Kromme MijdrechtstraatProject Trommij ligt aan de Trompenburgstraat en Kromme Mijdrechtstraat. Hier komen nieuwe, duurzame woningen. Een deel van de woningen is geschikt voor ouderen. Het complex krijgt hofwoningen, een groene binnentuin en moderne appartementen. De appartementen aan de Trompenburgstraat liggen boven de Praxis City. In totaal komen er 23 woningen bij. Zo ontstaat er meer passende en betaalbare woonruimte in de Rivierenbuurt van Amsterdam.ContactVragen? Mail trommij@de-alliantie.nl.Meer informatie en plattegronden vindt u op de projectpaginaSloop, nieuwbouw en renovatie in de Trompenburgstraat in Amsterdam | de AlliantieWijzigingen huurtoeslag | Huurtoeslag | Home | Volkshuisvesting NederlandDisclaimer: onder voorbehoud van wijzigingen. Aan deze informatie kunnen geen rechten worden ontleend.

Map