Rental property Amsterdam

Lauriergracht 103A, Amsterdam

Quick summary

Location
Amsterdam
Rental price
€900.07
Property type
Benedenwoning
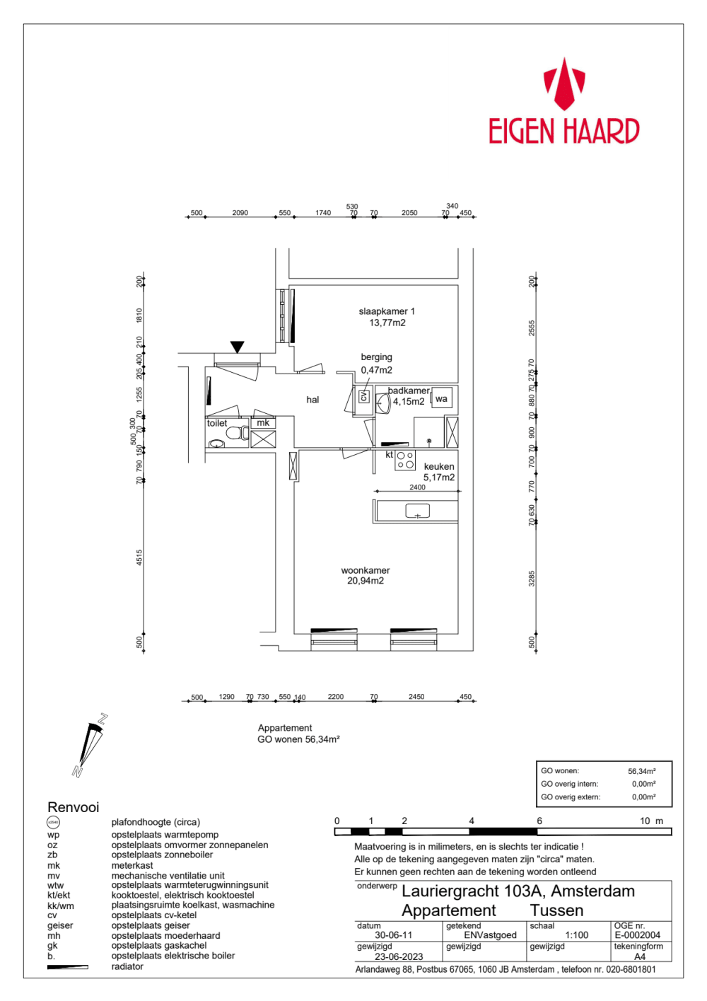
Area:
44 m2
Rooms:
2
Beds:
1
Waiting time:
(not set)
Date available:
May 23, 2025
Maximum income:
(not set)
Status:
Expired

Property description

BijzonderhedenParkeren/ met vergunning:Linknaar gemeente Amsterdam.Servicekosten zijn nog niet bekend, deze worden definitief gemaakt zodra het contract wordt opgesteld.2 traptrede in de woningDe woningBeganegrond3 traptrede bij de algemene toegangsdeur.Woonkamer met open keuken1 slaapkamerBadkamer met aparte WCWasmachine aansluiting in de badkamerRamen van de woning bevinden zich niet aan de straat kant.In de buurtMidden in de Jordaan7 minuten fietsen naar Amsterdam CentraalCafés en restaurants om de hoekBasisschool op 10 minuten lopenAlbert Heijn op 5 minuten lopenLet op:woningkenmerken, plattegrond en huurprijs zijn nog onder voorbehoud. Klik hier voor meer informatie.https://www.woningnetregioamsterdam.nl/Nieuws/Huurprijzen%20onder%20voorbehoud%20bij%20Eigen%20HaardTechnische staat :We leveren de woning volgens de Eigen Haard standaard op. Voor meer informatie kijkt u op onze site. Houd er rekening mee dat u zelf ook nog het een en ander moet doen om de woning naar uw smaak te maken. Denk aan schilderen van de muren en plafonds, afstomen van behang en/ of het leggen van een vloer.https://www.eigenhaard.nl/weten-en-regelen/sociale-huur/nieuwe-huurders/oplevering#F4BBB11819D44A4184749E7F8DD30BD7Wilt u de woning huren?Voor meer informatie over welke documenten u nog meer moet inleveren op het moment dat u eerste kandidaat wordt voor de woning, kijkt u op onze website.https://www.eigenhaard.nl/weten-en-regelen/sociale-huur/nieuwe-huurders/acceptatie-en-toewijzing

Map