Rental property Amsterdam

Lijndenstraat 11, Amsterdam

Quick summary

Location
Amsterdam
Rental price
€920.07
Property type
Benedenwoning
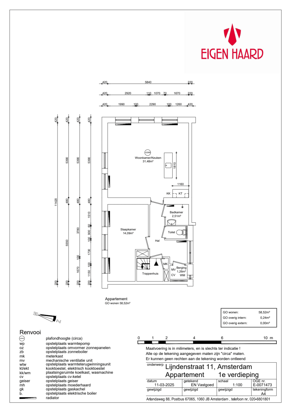
Area:
49 m2
Rooms:
2
Beds:
1
Waiting time:
(not set)
Date available:
Mar 28, 2025
Maximum income:
(not set)
Status:
Expired

Property description

BijzonderhedenWoning gelegen boven restaurantBetaald parkeren/ met vergunning: zie voor meer informatie website gemeente AmsterdamDe woningWoning gelegen op 1e etageLet op !  Smalle en steile trap naar de woning (zie foto)Open keuken in woonkamerGeen buitenruimteWasmachine aansluiting in inpandig kleine bergingGeen aparte bergingCentrale verwarmingBuurtNabij restaurantNabij Bierbrouwerij het IJNabij sportschoolNabij supermarktNabij openbaar vervoer10 minuten fietsen naar Centraal StationWelke voorzieningen zijn er in de buurt? Kijk bij tabblad Buurt om meer over de buurt te weten te komen.Let op:woningkenmerken, plattegrond en huurprijs zijn nog onder voorbehoud. Klik hier voor meer informatie:https://www.woningnetregioamsterdam.nl/Nieuws/Huurprijzen%20onder%20voorbehoud%20bij%20Eigen%20HaardTechnische staatWe leveren de woning volgens de Eigen Haard standaard op.  Voor meer informatie kijkt u op onze site:https://www.eigenhaard.nl/weten-en-regelen/sociale-huur/nieuwe-huurders/oplevering#F4BBB11819D44A4184749E7F8DD30BD7Houd er rekening mee dat u zelf ook nog het een en ander moet doen om de woning naar uw smaak te maken. Denk aan schilderen van de muren en plafonds, afstomen van behang en/ of het leggen van een vloer.Wilt u de woning huren?Voor meer informatie over welke documenten u nog meer moet inleveren op het moment dat u eerste kandidaat wordt voor de woning, kijkt u op onze website:https://www.eigenhaard.nl/weten-en-regelen/sociale-huur/nieuwe-huurders/acceptatie-en-toewijzingInkomensverklaringControleert u voordat u gaat reageren op deze woning, of uw recente inkomen staat genoteerd in Woningnet. Dit voorkomt teleurstellingen.

Map