Rental property Amsterdam

Marius Meijboomstraat 70, Amsterdam

Quick summary

Location
Amsterdam
Rental price
€648.48
Property type
Portiekwoning
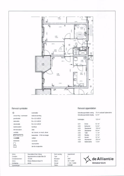
Area:
62 m2
Rooms:
3
Beds:
2
Waiting time:
(not set)
Date available:
Oct 24, 2022
Maximum income:
€39.055.00
Status:
Expired

Property description

WONINGOMSCHRIJVING De woning is goed onderhouden. Houd er rekening mee dat u zelf ook nog het een en ander moet doen om de woning naar uw smaak te maken. Denk aan het eventueel schilderen van de muren en plafonds. Woonomgeving IJburg is een nieuwe woonwijk in het oosten van Amsterdam. De buurt bestaat uit een aantal eilanden in het IJmeer. IJburg is een leuke, levendige en groene wijk. De buurt ligt centraal en is goed aangesloten op het OV en ligt dichtbij verschillende snelwegen. Aanvullende informatie Een inkomenstoets maakt onderdeel uit van de toewijzingsprocedure. Uw belastbaar huishoudinkomen mag maximaal 45014,- per jaar zijn. Zorgt u dat uw inkomensverklaring 2021 in uw bezit is? Aanvullingen Verwarming vindt plaats door middel van stadsverwarming. LET OP: Voor autobezitters is het noodzakelijk om een parkeervak te huren in de parkeergarage. Er wordt geen vergunning afgegeven voor het parkeren op straat. De huur is exclusief huuraanpassing van de servicekosten per 1 juli 2021 Lees minder... Voorwaarden: Inkomensverklaring verplicht Een verklaring geregistreerd inkomen van de Belastingdienst van u en alle meeverhuizende personen (behalve kinderen) is verplicht. Deze moet van het voorgaande jaar zijn, of als deze nog niet beschikbaar is, van het jaar daarvoor. Vraag uw inkomensverklaring direct aan door in te loggen op Mijn Belastingdienst of via de Belastingtelefoon (0800-0543). De corporatie controleert uw inkomen bij de toewijzing en wil uw inkomensverklaring(en) altijd ontvangen, ook als er geen bedrag op staat. Zorg ervoor dat het inkomen in uw inschrijving klopt. Anders loopt u het risico dat de corporatie u afwijst als u eerste kandidaat wordt.

Map