Rental property Amsterdam

Marnixstraat 312D, Amsterdam

Quick summary

Location
Amsterdam
Rental price
€811.21
Property type
Appartement
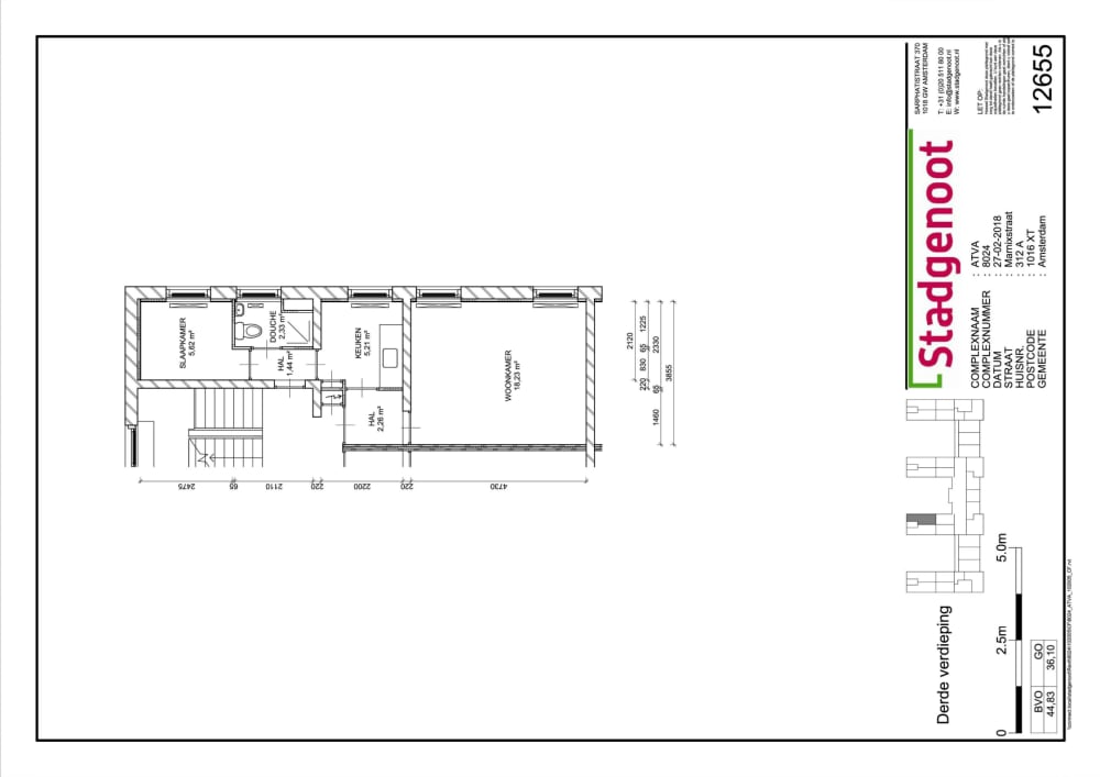
Area:
31 m2
Rooms:
2
Beds:
1
Waiting time:
(not set)
Date available:
Nov 20, 2025
Maximum income:
(not set)
Status:
Expired

Property description

In het ATVA-gebouw aan de Marnixstraat in het centrum bieden wij een twee kamerwoning aan op de derde verdieping. De woning wordt verhuurd aan jongeren tot en met 27 jaar.WoningWoonkamerSlaapkamerGesloten keukenElektrisch kokenWasmachineaansluiting in de keukenBadkamer en toiletGemeenschappelijke tuinBuurtHet complex is een RijksmonumentHet complex ligt in het centrumWinkels op loopafstandHoreca op loopafstandLeidseplein op loopafstandTram- en bushalte Elandsgracht op loopafstandVondelpark op fietsafstandZie ook tabblad LocatieParkeren:Let op: bij sommige woningen wordt vanuit de gemeente geen parkeervergunning afgegeven. - Bent u benieuwd of het bij deze woning mogelijk is om een parkeervergunning te verkrijgen?Kijk op:www.amsterdam.nl/parkeren-verkeer/parkeervergunning/parkeervergunning-bewoners/of neem contact op met de gemeente voor meer informatie.Soms is het mogelijk om in de omgeving via Stadgenoot een eigen parkeerplaats te huren. Bekijk ons aanbod op:https://aanbod.stadgenoot.nl/parkeerplaatsen/huuraanbodJongerenwoningJongerenwoningen worden niet verhuurd aan een woningzoekende met kind(eren).Deze jongerenwoning is niet bestemd voor studenten, die een voltijd opleiding volgen aan een universiteit, HBO of MBO in de regio Amsterdam.WaarborgsomVoor Sociale Huur betaalt u een waarborgsom ter hoogte van een maand huur. De waarborgsom betaalt u samen met de eerste huur.Verzamel uw documenten op tijdWordt  u na de selectiedatum uitgenodigd voor de bezichtiging? Verzamel dan alvast uw documenten. Wij vragen u uw documenten binnen 3 dagen aan te leveren als u 1e kandidaat bent voor de woning. Lees hier welke documenten u moet aanleveren:Aan te leveren documenten.DuurzaamElektrisch koken: U kookt dus elektrisch. In de keuken zit een Perilex-aansluiting voor een elektrisch kooktoestel. Dit is een aparte (2-fase) aansluiting. Let op! Het elektrisch vermogen van uw kooktoestel mag niet groter zijn dan 7,4 KW.Technische staatStadgenoot levert de woning schoon, heel en veilig aan u op. Houd er rekening mee dat u zelf nog wat aan de woning moet doen. Denk aan schilderen van de muren en plafonds, afstomen van behang en/of het leggen van een vloer.Let op:Woningkenmerken en plattegrond kunnen mogelijk iets afwijken van de werkelijkheid. Bijvoorbeeld omdat wij nog werkzaamheden moeten uitvoeren na de bezichtiging. De basis zoals het aantal kamers en het type woning staan vast.

Map