Rental property Amsterdam

Merelstraat 6HS, Amsterdam

Quick summary

Location
Amsterdam
Rental price
€688.27
Property type
Benedenwoning
Area:
51 m2
Rooms:
3
Beds:
2
Waiting time:
(not set)
Date available:
Aug 11, 2025
Maximum income:
€39.055.00
Status:
Expired

Property description

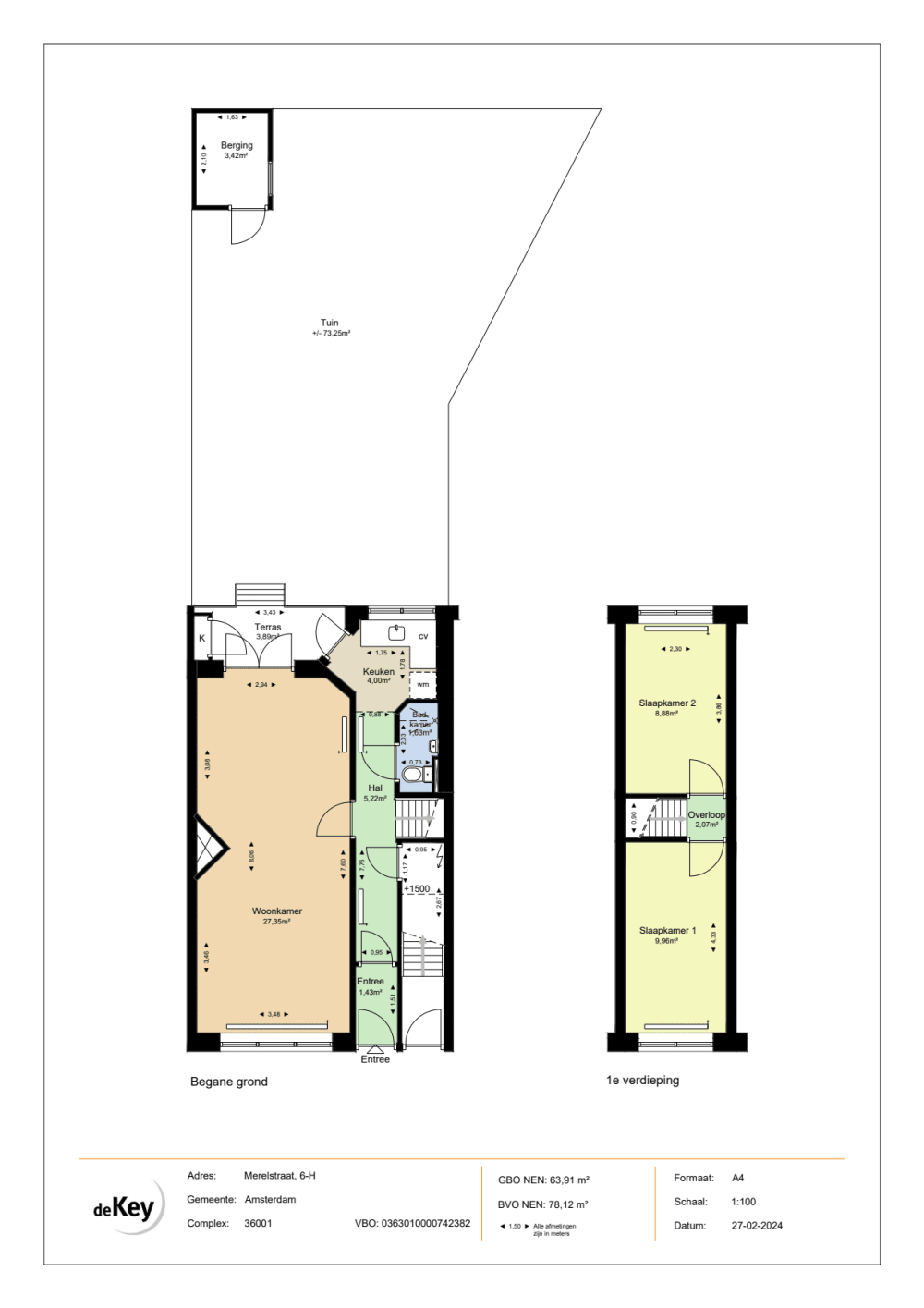
Let op! Plattegrond kan afwijken van de werkelijkheid.Beschrijving woningBetreft een 3 kamer begane grond woning maar LET OP de slaapkamers zijn op de 1e etage gelegen die men doormiddel van een trap bereikt. Verder is dit een zogenaamde Dijkwoning omdat de tuin en schuur alleen doormiddel van uw woning en een trap te bereiken zijn er is dus geen achterom.Beschikbaarheid per 11 augustus 2025Dit is de datum waarop wij verwachten dat de huurovereenkomst in kan gaan. Let op: aan vermelding van deze datum kunnen geen rechten worden ontleend. Deze datum kan nog veranderen.WaarborgsomLieven de Key brengt een waarborgsom ter hoogte van € 647 in rekening. De waarborgsom betaalt u samen met de eerste huur vóór ondertekening van de huurovereenkomst.Kenmerken woning:• energielabel A• niet bereikbaar met lift• open keuken• elektrisch koken met perilex aansluiting (2 fase)• aansluiting wasmachine in de keuken• individuele cv combi-ketel• toilet in badkamer• dubbele beglazing• gehorige woning• tuin• berging in de tuinIn de buurt:• winkels• voorzieningen• openbaar vervoer• scholen• natuurAfval en parkeren:• Benieuwd waar u huisafval kan laten? Klik hier voor meer informatie over huisvuil in Amsterdam• Benieuwd of er een parkeermogelijkheid is bij deze woning? Let op: bij sommige woningen is een parkeervergunning niet toegestaan. Klik hier voor meer informatie over parkeervergunningen in de gemeente AmsterdamTechnische staat van onze woningenWe leveren de woning volgens de Lieven de Key standaard op. Houd er rekening mee dat u zelf nog wat aan de woning moet doen. Denk hierbij bijvoorbeeld aan behangen en schilderen en het leggen van een vloer. Kijk hier voor de kwaliteitseisen van Lieven de Key en hoe wij een woning opleveren.Verzamel alvast uw gegevensWordt u uitgenodigd voor de bezichtiging? Verzamel dan alvast uw gegevens. Wacht niet totdat u de eerste kandidaat bent. Deze documenten moet u straks aanleveren:Verklaring kandidaat(verplicht document)Inkomensverklaring van de belastingdienst(verplicht document)Verhuurdersverklaring:woont u nog thuis? Dan hoeft u dit document niet aan te leverenUittreksel Basisregistratie Personen (BRP)waar de huwelijkse staat, historische adressen en aantal persoenen in het huishouden op staat van de gemeente waar u nu woont: woont u in Amsterdam? Dan hoef u dit document niet aan te leveren.Kijk voor meer informatie over deze documenten op onze website:https://lievendekey.nl/socialehuurwoning

Map