Rental property Amsterdam

Niftrikhof 217, Amsterdam

Quick summary

Location
Amsterdam
Rental price
€915.80
Property type
Appartement
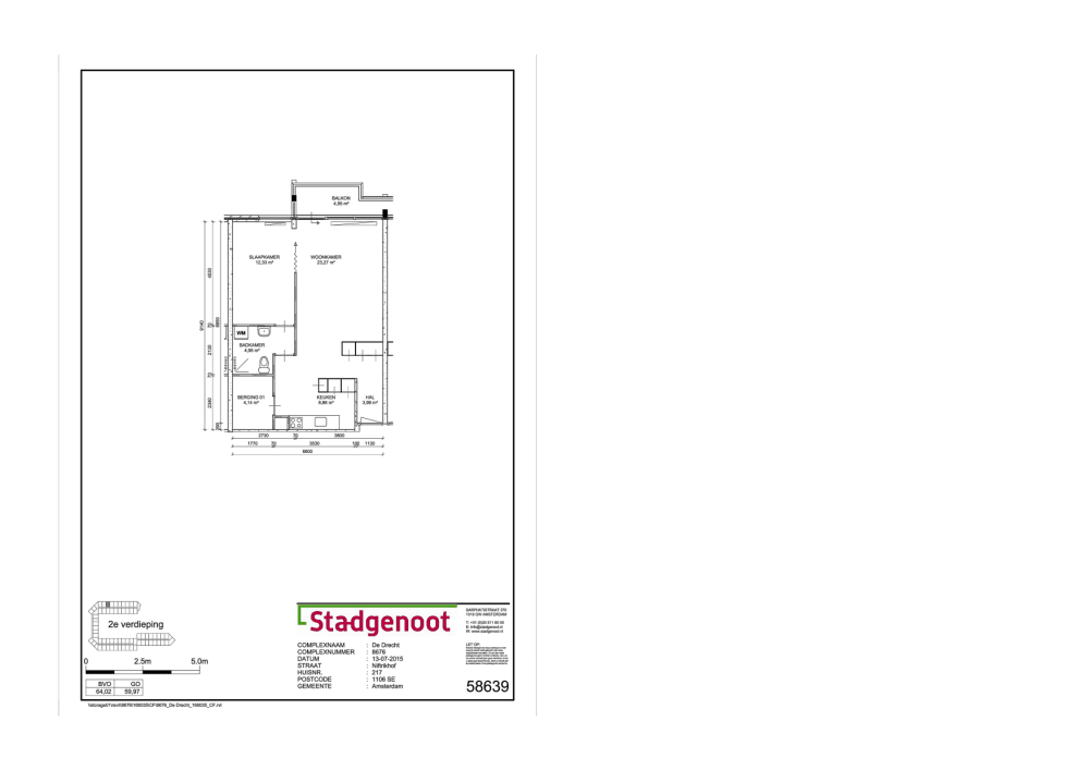
Area:
49 m2
Rooms:
2
Beds:
1
Waiting time:
(not set)
Date available:
Oct 23, 2025
Maximum income:
(not set)
Status:
Expired

Property description

Wij bieden een tweekamer Wibo-woning aan in Amsterdam in de buurt Holendrecht-west.WoningWoonkamerSlaapkamerOpen keukenBadkamer met toilet en wasmachineaansluitingInpandige bergingBalkonElektrisch kokenBuurtOp loopafstand van winkelcentrum Holendrecht en Station Holendrecht.Nabij gezondheidscentrum De Drecht.Parkeren: bij sommige woningen wordt vanuit de gemeente geen parkeervergunning afgegeven. Benieuwd of het bij deze woning mogelijk is een parkeervergunning te verkrijgen? Kijk ophttps://www.amsterdam.nl/parkeren-verkeer/parkeervergunning/parkeervergunning-bewoners/) of neem contact op met de gemeente voor meer informatie. Soms is het mogelijk om in de omgeving via Stadgenoot een eigen parkeerplaats te huren. Bekijk ons huuraanbod ophttps://aanbod.stadgenoot.nl/parkeerplaatsen/huuraanbod.”Specifieke informatie over de toewijzingSeniorenwoningSeniorenwoningen worden niet verhuurd aan huishoudens met kinderen.WaarborgsomVoor Sociale Huur betaalt u een waarborgsom ter hoogte van een maand huur. De waarborgsom betaalt u samen met de eerste huur.Voor Vrije Sector betaalt u afhankelijk van uw situatie borg ter hoogte van een of twee maanden huur. De waarborgsom betaalt u samen met de eerste huur.Aan te leveren documentenVerzamel uw documenten op tijdWordt u na de selectiedatum uitgenodigd voor de bezichtiging? Verzamel dan alvast uw documenten. Wij vragen u uw documenten binnen 3 dagen aan te leveren als u 1e kandidaat bent voor de woning. Lees hier welke documenten u moet aanleveren:HuurwoningenDuurzaamElektrisch kokenEr is geen gas meer in huis. U kookt dus elektrisch. In de keuken zit een Perilex-aansluiting voor een elektrisch kooktoestel. Dit is een aparte (2-fase) aansluiting. Let op! Het elektrisch vermogen van uw kooktoestel mag niet groter zijn dan 7,4 KW.Technische staatStadgenoot levert de woning schoon, heel en veilig aan u op. Houd er rekening mee dat u zelf nog wat aan de woning moet doen. Denk aan schilderen van de muren en plafonds, afstomen van behang en/of het leggen van een vloer.Let op:Woningkenmerken en plattegrond kunnen mogelijk iets afwijken van de werkelijkheid. Bijvoorbeeld omdat wij nog werkzaamheden moeten uitvoeren na de bezichtiging. De basis zoals het aantal kamers en het type woning staan vast.

Map