Rental property Amsterdam

Osdorpplein 838, Amsterdam

Quick summary

Location
Amsterdam
Rental price
€710.85
Property type
Appartement
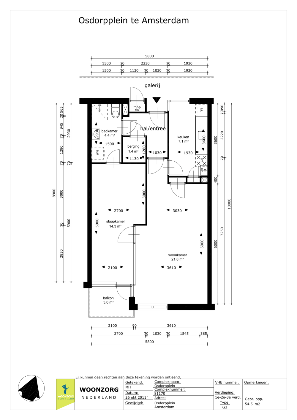
Area:
54 m2
Rooms:
2
Beds:
1
Waiting time:
(not set)
Date available:
Jan 12, 2026
Maximum income:
€39.055.00
Status:
Published
Respond

Property description

Tweekamerwoning op de 1eetage in wooncomplex OsdorppleinWoningWoonkamerOpen keuken1 slaapkamerBadkamer met toiletLiftBijzonderhedenInwonende kinderen/ familieleden zijn niet toegestaanUitzicht op binnentuinStaat van de woningDe woning is volledig gerenoveerd en wordt kaal opgeleverdDe woning bevindt zich in het oudere gedeelte van het complexIn de buurtOpenbaar vervoer tram 17Supermarkten, winkels en restaurants op het pleinzorgcentrum in de buurtVerzamel alvast uw documentenVerzamel alvast om het proces te versnellen onderstaande documenten voor Woonzorg als u op de woning heeft gereageerd. Ook als u niet de eerste kandidaat bent!Historisch uittreksel van de gemeenteInkomensverklaring belastingdienst 2024 of een definitieve aanslag 2024Verhuurdersverklaring huidige verhuurderBezichtigingKandidatennummer 1 t/m 10 worden uitgenodigd voor een bezichtiging opwoensdag 21 januari van 12.00 tot 12.30 uur.  Meldt u zich aan bij Woningnet voor de bezichtiging.

Map