Rental property Amsterdam

Osdorpplein 861, Amsterdam

Quick summary

Location
Amsterdam
Rental price
€713.31
Property type
Appartement
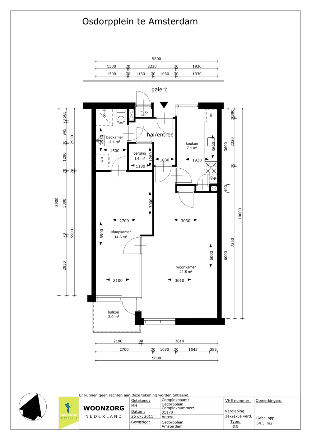
Area:
54 m2
Rooms:
2
Beds:
1
Waiting time:
(not set)
Date available:
Aug 18, 2025
Maximum income:
€39.055.00
Status:
Expired

Property description

Tweekamerwoning op de 3eetage in wooncomplex OsdorppleinWoningWoonkamerAparte keuken (tussenwandje)1 slaapkamerBadkamer met toiletLiftBijzonderhedenInwonende kinderen/ familieleden zijn niet toegestaanUitzicht op binnentuinStaat van de woningDe woning is leeg, voorzien van een laminaat vloer en enkel laags behangEr wordt aan de achterkant van het complex nog gebouwdIn de buurtOpenbaar vervoer tram 17Supermarkten, winkels en restaurants op het pleinzorgcentrum in de buurtVerzamel alvast uw documentenVerzamel alvast om het proces te versnellen onderstaande documenten voor Woonzorg als u op de woning heeft gereageerd. Ook als u niet de eerste kandidaat bent!Historisch uittreksel van de gemeenteInkomensverklaring belastingdienst 2024 of een definitieve aanslag 2024Verklaring kandidaat deel 1 en de Verhuurdersverklaring deel 2BezichtigingKandidatennummer 1 t/m 10 worden uitgenodigd voor een bezichtiging op dinsdag 26 augustus van 12.00 tot 12.30 uur.  Meldt u zich aan bij Woningnet voor de bezichtiging.

Map