Rental property Amsterdam

Ottho Heldringstraat 13U, Amsterdam

Quick summary

Location
Amsterdam
Rental price
€917.74
Property type
Portiekwoning
Area:
69 m2
Rooms:
3
Beds:
2
Waiting time:
(not set)
Date available:
Oct 31, 2025
Maximum income:
(not set)
Status:
Expired

Property description

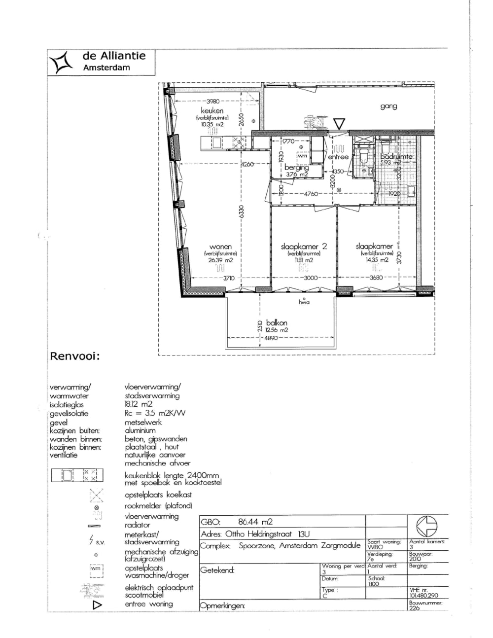
Een 3 kamer-appartement is beschikbaar gekomen op de Ottho Heldringstraat 13-U in de wijk Slotervaart op de 7e etage; ruime woonkamer, 2 slaapkamers en een half open keuken.* Ruime woonkamer 26 m2 bereikbaar vanuit hal* 1 slaapkamer 12 m2 bereikbaar vanuit hal* 1 slaapkamer 14 m2 bereikbaar vanuit hal* half open keuken 10 m2 grenst aan woonkamer* gelegen op de 7e etage* lift aanwezig* badkamer met toilet bereikbaar vanuit hal* apart toilet* berging inpandig van 4 m2* Let op er is geen buitenruimte aanwezig!* De woning ligt in seniorencomplex dus niet geschikt voor kinderen!* Elektrisch koken, afzuigkap aanwezig* vaatwasmachine aansluiting is aanwezig* balkon 12,56 m2 met mooi uitzicht ligging op het westen* vloerverwarming middels stadsverwarmingHoudt u er rekening mee dat u zelf ook nog het een en ander moet doen om de woning naar uw smaak te maken. Denk aan schilderen van de muren en plafonds, afstomen van behang.Er ligt een laminaatvloer door de hele woning zie foto's.Aan de Otto Heldringstraat staat De Parade. Een schitterend complex en een icoon van de vernieuwing die de Staalmanpleinbuurt in Nieuw-West doormaakt.Deze woning is NIET GESCHIKT voor gezinnen.De Ottho Heldringstraat ligt aan het mooie nieuwe Staalmanplein.Op het plein staat een beroemd kunstwerk van de kunstenaar Florentijn Hofman.Qua bereikbaarheid is de woning goed bereikbaar.Gesitueerd op loopafstand van een supermarkt en loopafstand van een treinstation. Daarnaast is de dichtstbijzijnde uitvalsweg in de nabije omgeving op slechts 2 minuten rijden.De ruime woning heeft drie kamers en is direct beschikbaar.Het appartement is op de 7e verdieping van het complex. De woning is bereikbaar met 2 liften. Keuken is voorzien van een inductie kookplaat en een motorloze afzuigkap.Dubbel glas en een inpandige berging. Stadsverwarming met vloerverwarming.Er is een complexbeheerder. Oplaadpunt voor een scootmobiel is in de gemeenschappelijke ruimte aanwezig.Het Stadsdeel geeft in dit gebied geen parkeervergunning af.U kunt een parkeerplek huren in de parkeergarage onder de woongebouwen.

Map