Rental property Amsterdam

Overtoom 185D, Amsterdam

Quick summary

Location
Amsterdam
Rental price
€900.07
Property type
Portiekwoning
Area:
61 m2
Rooms:
3
Beds:
2
Waiting time:
(not set)
Date available:
Nov 12, 2025
Maximum income:
(not set)
Status:
Expired

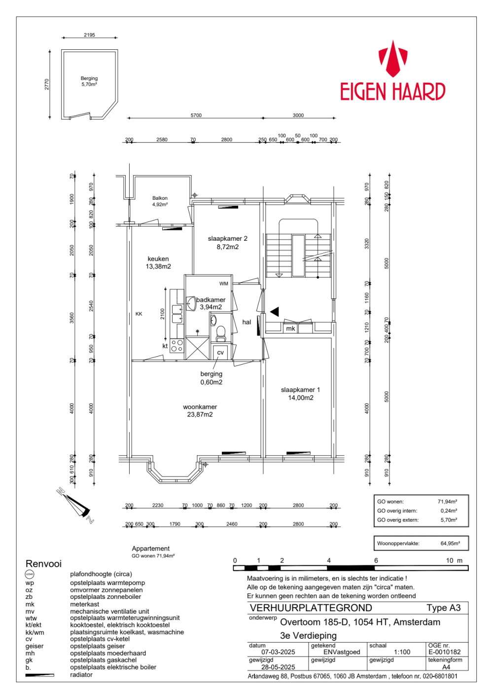
Property description

De woningWoonkamer met gesloten keuken2 slaapkamersWasmachine aansluiting in het badkamerToilet in de halExterne berging aanwezigWasmachine aansluiting in de badkamerGeen liftDe woning bevindt zich op de 3e etageLet op: aan de achterkant ligt een manege, waar u mogelijk stank kunt ervaren.In de buurtOpenbaar vervoer (ongeveer 4 minuten lopen)SupermarktVondelparkLet op:woningkenmerken, energielabel, plattegrond en huurprijs zijn nog onder voorbehoud. Klikhiervoor meer informatie.Technische staatWe leveren de woning volgens de Eigen Haard standaard op.  Voor meer informatie kijkt u op onzesite.Houd er rekening mee dat u zelf ook nog het een en ander moet doen om de woning naar uw smaak te maken. Denk aan schilderen van de muren en plafonds, afstomen van behang en/ of het leggen van een vloer.Wilt u de woning huren?Voor meer informatie over welke documenten u nog meer moet inleveren op het moment dat u eerste kandidaat wordt voor de woning, kijkt u op onzewebsite

Map