Rental property Amsterdam

Pluvierstraat 2HS, Amsterdam

Quick summary

Location
Amsterdam
Rental price
€905.38
Property type
Benedenwoning
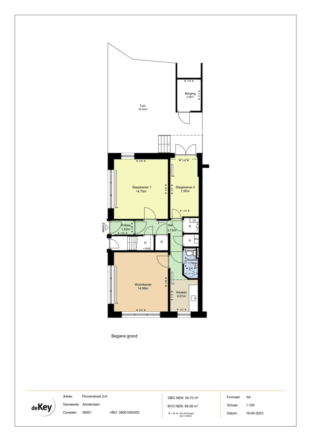
Area:
42 m2
Rooms:
3
Beds:
2
Waiting time:
(not set)
Date available:
Mar 13, 2025
Maximum income:
(not set)
Status:
Expired

Property description

Let op! Plattegrond kan afwijken van de werkelijkheid.Let op! Voor deze woning kan geen huurtoeslag worden aangevraagdLet op! Deze woning is niet bestemd voor studenten.Betreft een zogenaamde 3 kamer begane grond hoek " Dijkwoning " wat in dit geval wil zeggen dat de tuin en schuur zowel via de woning als via het tuinhek alleen via een trap bereikbaar is.Kenmerken woning:energielabel Aniet bereikbaar met liftopen keukenelektrisch koken met perilex aansluiting (2 fase)aansluiting wasmachine in hal kastindividuele cv combi-keteltoilet in badkamerdubbele beglazinggehorige woningtuinberging in de tuinDe overige kenmerken van de woning zijn helemaal onderaan te vinden.In de buurt:winkelsvoorzieningenopenbaar vervoerscholennatuurAfval en parkeren:Benieuwd waar u huisafval kan laten?Klikhiervoor meer informatie over huisvuil in AmsterdamKlikhiervoor meer informatie over huisvuil in Diemen.Benieuwd of er een parkeermogelijkheid is bij deze woning? Let op: bij sommige woningen is een parkeervergunning niet toegestaan.Klikhiervoor meer informatie over parkeervergunningen in de gemeente AmsterdamKlikhiervoor meer informatie over parkeervergunningen in de gemeente DiemenTechnische staat van onze woningenWe leveren de woning volgens de Lieven de Key standaard op. Houd er rekening mee dat u zelf nog wat aan de woning moet doen. Denk hierbij bijvoorbeeld aan behangen en schilderen en het leggen van een vloer. Kijkhiervoor de kwaliteitseisen van Lieven de Key en hoe wij een woning opleveren.Aanvullende voorwaardenWaarborgsomLieven de Key brengt een waarborgsom ter hoogte van €808,- in rekening. Deze waarborgsom betaalt u samen met de eerste huur vóór ondertekening van de huurovereenkomst.Verzamel alvast uw gegevensWordt u uitgenodigd voor de bezichtiging? Verzamel dan alvast uw gegevens. Wacht niet totdat u de eerste kandidaat bent. Deze documenten moet u straks aanleveren:Verklaring kandidaat(verplicht document)Inkomensverklaring van de belastingdienst(verplicht document)Verhuurdersverklaring:woont u nog thuis? Dan hoeft u dit document niet aan te leverenUittreksel Basisregistratie Personen (BRP)waar de huwelijkse staat, historische adressen en aantal persoenen in het huishouden op staat van de gemeente waar u nu woont: woont u in Amsterdam? Dan hoef u dit document niet aan te leveren.Kijk voor meer informatie over deze documenten op onze website:https://lievendekey.nl/socialehuurwoningBeschikbaarheid:Dit is de datum waarop wij verwachten dat de huurovereenkomst ondertekend kan worden. Let op: aan vermelding van deze datum kunnen geen rechten worden ontleend, deze datum kan nog veranderen.

Map