Rental property Amsterdam

Riouwstraat 306, Amsterdam

Quick summary

Location
Amsterdam
Rental price
€935.00
Property type
Benedenwoning
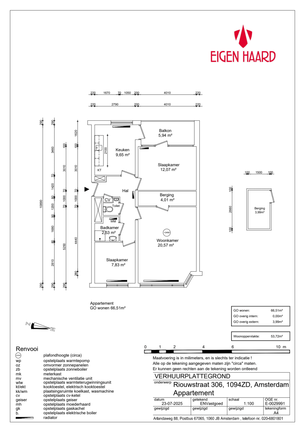
Area:
66 m2
Rooms:
3
Beds:
2
Waiting time:
(not set)
Date available:
Sep 2, 2025
Maximum income:
(not set)
Status:
Expired

Property description

Tip!Verzamelde benodigde documentenalvast. Je hebt zemeteenna de bezichtiging nodig.Over de buurtIndische buurt amsterdam OostJavastraat winkelsDappermarktLeuke restaurants en cafésFlevoparkMuiderpoortstationBasisscholenMiddelbare scholenIndeling van de woningEntree naar de woning op de derde verdiepingWoonkamerGesloten keuken2 slaapkamersBadkamer met doucheApart toiletBalkonVloer overname(kosteloos, geen onderhoudsplicht Eigen Haard)Externe bergingParkerenParkeren kan in de buurt van de woning met een bewonersvergunning, als er een vergunning wordt toegekend. Wij verwijzen je naar degemeentevoor informatie hierover. Optioneel is het mogelijk om in de omgeving een parkeerplaats te huren. Er kunnen wachtlijsten zijn. Bekijk onsparkeeraanbod.ToewijzingEigen Haard verhuurt huurwoningen in het middensegment op basis van het actuele inkomen (inkomen op dit moment). Zorg er daarom voor dat je actuele inkomen staat ingevuld in je profiel vóórdat je reageert op de woning. Laat dit bedrag vervolgens in je profiel staan totdat de selectie van de woning is geweest. Doe je dit niet? Dan kan het zijn dat wij je bij de gegevenscontrole moeten afwijzen voor de woning. Bekijk hier hoe je het actuelegezamenlijk jaarinkomenbepaald.Het actuele inkomen van jou en je eventuele medeaanvrager tellen beide voor 100% mee.Als je zelfstandig ondernemer (zzp'er) bent, dan moet je minimaal 2 jaar werkzaam zijn als zelfstandig ondernemer. Ben je niet minimaal 2 jaar werkzaam als zelfstandig ondernemer voor de huidige onderneming, dan kom je niet in aanmerking voor de woning.Eigen Haard wil graag passend verhuren,kijkwat dat voor jou betekent.Doorstromers krijgen voorrang bij Eigen Haard. Bij Eigen Haard is een doorstromer iemand die een zelfstandige sociale huurwoning van een corporatie leeg achterlaat binnen stadsregio Amsterdam.Hierleggen we je uit wat het verschil is tussen een doorstromer en een instromer.Huur je van Eigen Haard een sociale huurwoning en laat je die leeg achter? Je krijgt dan voorrang op andere doorstromers en er geldt voor jou geen maximale inkomenseis, wel de minimale inkomenseis.DisclaimerDe getoonde informatie is door ons met zorg samengesteld op basis van beschikbare gegevens, maar kan afwijken van de werkelijke situatie. Hier kunnen geen rechten aan worden ontleend.

Map