Rental property Amsterdam

Ruyschstraat 122B, Amsterdam

Quick summary

Location
Amsterdam
Rental price
€731.93
Property type
Appartement
Area:
57 m2
Rooms:
3
Beds:
2
Waiting time:
(not set)
Date available:
Nov 21, 2025
Maximum income:
€39.055.00
Status:
Expired

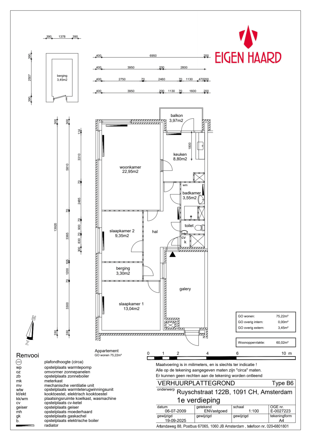
Property description

BijzonderhedenDe woning is onder voorbehoud geadverteerd met een huurprijs conform prijspeil 2025. Indien de uiteindelijke verhuring in 2026 plaatsvindt zal de huurprijs conform prijspeil 2026 worden vastgesteld.Voorrang kleine gezinnenDeze woning is met voorrang bestemd voor kleine gezinnen. Dit zijn huishoudens met één of twee kinderen. Minimaal één van de kinderen moet jonger dan 18 jaar zijn.Zoek op dewebsite van Woningnetop “kleine gezinnen” om uitleg en de voorwaarden te lezen. De voorrang voor kleine gezinnen wordt pas gecontroleerd nadat u op de nummer 1 positie bent gekomen en de woning aangeboden heeft gekregen.WMO-indicatie -Let op:in de brief van de gemeente staat wanneer je recht hebt op de verhuiskostenvergoeding. Deze woning is op de 1e verdieping, zonder lift.Naast OLVG Oost, boven horeca zaakGelegen aan drukke wegServicekosten nog niet bekend, houd rekening met ongeveer 20 EuroDe woningWoonkamer met aparte keukenGesloten keuken met toegang tot balkonKoken op gas2 slaapkamersWasmachine aansluiting in de badkamerToilet in de halExterne berging op de begane grondIn de buurtZiekenhuis OLVG Oost in de straatTramhalte 3 voor de deurDiverse horeca in de directe omgevingOosterpark 3 minuten loopafstandSupermarkt 5 minuten loopafstandDiverse scholen in de directe omgevingLet op:woningkenmerken, energielabel, plattegrond en huurprijs zijn nog onder voorbehoud. Klikhiervoor meer informatie.Technische staatWe leveren de woning volgens de Eigen Haard standaard op.  Voor meer informatie kijkt u op onzesite.Houd er rekening mee dat u zelf ook nog het een en ander moet doen om de woning naar uw smaak te maken. Denk aan schilderen van de muren en plafonds, afstomen van behang en/ of het leggen van een vloer.Wilt u de woning huren?Voor meer informatie over welke documenten u nog meer moet inleveren op het moment dat u eerste kandidaat wordt voor de woning, kijkt u op onzewebsiteParkeren met vergunning:Linknaar gemeente Amsterdam

Map